Klotski
The Klotski is a three-story, mixed-use infill building situated in the Ballard neighborhood of Seattle. Close to downtown, the area is noted for its dynamic mix of commercial, manufacturing, and residential uses. Reflecting the eclectic vibrancy and gritty nature of the neighborhood, the 10,041-square-foot CMU and steel-framed building houses a beer hall, an office, a maker space, a studio, and a small caretaker’s apartment.
Riffing on the idea of shifting uses and planes, the design takes its visual cue from a sliding tile puzzle, also known as a klotski. The puzzle is expressed on the south-facing exterior of the building by use of 7’x10’ perforated metal screens. The screens slide vertically, enabling users to change their position for sun shading, privacy, and in response to seasonal variations in daylight.
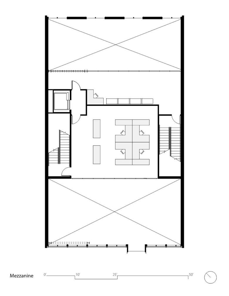
At street level, the building is set back from the property line to accommodate a sidewalk café. Full-height windows and sliding glass doors connect interior activity to the street. The glazed, second-story wall of windows features a single steel-wrapped bay window that extends out over the sidewalk. Inside, the clear-spanning steel structure and brace frames are exposed, complementing concrete floors and wood decking. An open floor plan and seventeen-foot-high ceilings create a loft-like industrial aesthetic for the office housed within. A self-contained mezzanine, conceived as a maker space studio, floats within the second floor volume. A studio apartment and a caretaker’s unit occupy the top level, where the building’s massing steps back to create an outdoor patio.
Sustainable features include rainwater cisterns that collect and recycle all on-site rainwater, roof-top solar panels, energy efficient radiant heating, thermally efficient, operable windows on the north and south sides of the building for cross ventilation, and operable sunshades on the exterior.
Additional Credits: Sitewise Design, Haris Kenjar, Kareem Tai Out of Round Design, Dovetail General Contractors, Kevin Scott, Geotech Consultants, Inc., Harriott Valentine Engineers, Inc.
- Architects
- Graham Baba Architects
- Any
- 2018
- Estat del projecte
- Construït

































