Rathaus Leingarten
Heilbronner Straße 38, Leingarten, Germany
Die Gemeinde Leingarten liegt etwa 45 km nördlich von Stuttgart und 4 km westlich von Heilbronn im landschaftlich reizvollen Leintal, am Westrand des Heilbronner Beckens und am Ostrand des Kraichgaues.
Der Neubau des Rathauses Leingarten befindet sich inmitten des gewachsenen Ortskerns der Gemeinde Leingarten in unmittelbarer Nähe der Lorenzkirche. Bedingt durch den Abbruch des schadstoffbelasteten Rathauses aus den 70er Jahren ergab sich die Chance, die stadträumliche Situation neu zu ordnen und als Mittelpunkt der Gemeinde zu definieren.
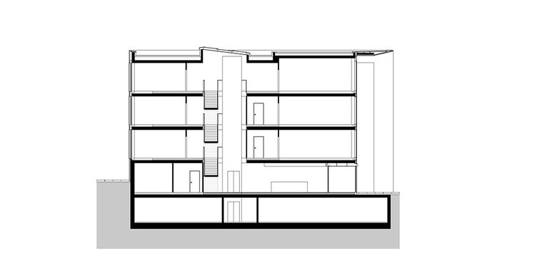
Das neue Rathaus entwickelt sich als kompakte viergeschossige Baufigur, die sich maßvoll in die bestehende städtebauliche Situation im Zentrum Leingartens einfügt. Mit seiner nördlichen Fassadenflucht nimmt das Gebäude Bezug auf den markanten Kirchturm der Lorenzkirche, den es in die neue Raumkonzeption einbezieht. Durch die Absenkung der neu gestalteten Platzfläche wird eine leicht geneigte Ebene ausgebildet, die sich im Gegensatz zur früheren Situation ebenerdig bis zur Heilbronner Straße nach Norden erstreckt. Es entsteht ein klar gefasster Platz der für Märkte, Feste und Veranstaltungen aller Art genutzt wird.
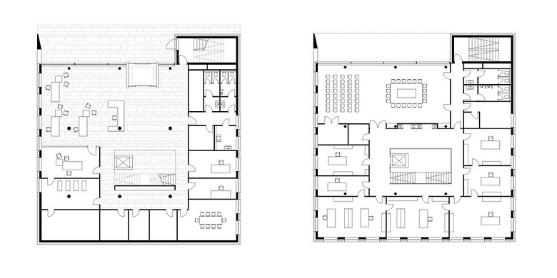
Das Gebäude artikuliert sich als klarer kubischer Baukörper mit einer geordneten Lochfassade aus hellem Kalkstein. An seiner Nordseite erhält das Rathaus eine markante dreigeschossige Glasöffnung die das Entree des Gebäudes zum Marktplatz markiert („ Fenster zum Platz“). Gleichzeitig werden an dieser Stelle die öffentlichen Einrichtungen und Funktionen des Hauses, wie beispielsweise das Bürgerbüro, der Sitzungssaal oder das Trauzimmer angeordnet, die sich transparent und einladend zum öffentlichen Raum präsentieren - auch das Bürgermeisterzimmer befindet sich an dieser Fassade. Kontrastiert wird die große Glasfassade durch die homogene steinerne Wandfläche des Treppenhauses, welches sich an der Nordostecke des Gebäudes befindet.
Das Gebäudeinnere orientiert sich stark an der vorgegebenen Nutzung. Die jeweiligen Ämter werden geschossweise als zusammenhängende Raumgefüge organisiert, die sich um das zentrale Atrium gruppieren. Im Erdgeschoss befindet sich das Bürgerbüro, welches zentral und von außen gut wahrnehmbar über das Empfangsfoyer zu erreichen ist.
Wettbewerb
1. Preis 2009
Fertigstellung
11/2011
BGF
ca. 3.050 m²
Baukosten
6,5 Mio €
Fotograf
Oliver Rieger
Modellbild
modellwerk weimar
- Architects
- pape + pape architekten
- Any
- 2011
- Estat del projecte
- Construït


















