Living Slabs
Juhu, Bombay, India
Nestled along the shores of Northern Bombay, the seaside neighborhood of Juhu has long held a distinctive place in the city's urban imagination. Juhu was planned as a gridded development of residential plots during the 1950s. The area has since developed into a luxurious seaside district, characterised by its eclectic juxtaposition of architectural tastes and time periods.
This building is a reconstruction of one of these original multi-generational family homes in Juhu. Our intention here was to allow this development to take the stage as new, whilst drawing on the original charm of Bombay balconies and outdoor living. The interiors, in noble materials, have been personalised for each family member and their respective art collections. A collective life of understated luxury and elegance.
The facades and windows are all treated as one skin, protecting the interiors against temperature variances and heavy coastal rains. The handsome anthracite black facade is bounded by crisp lines, giving way to the extending floor planes which blend interior and exterior life.
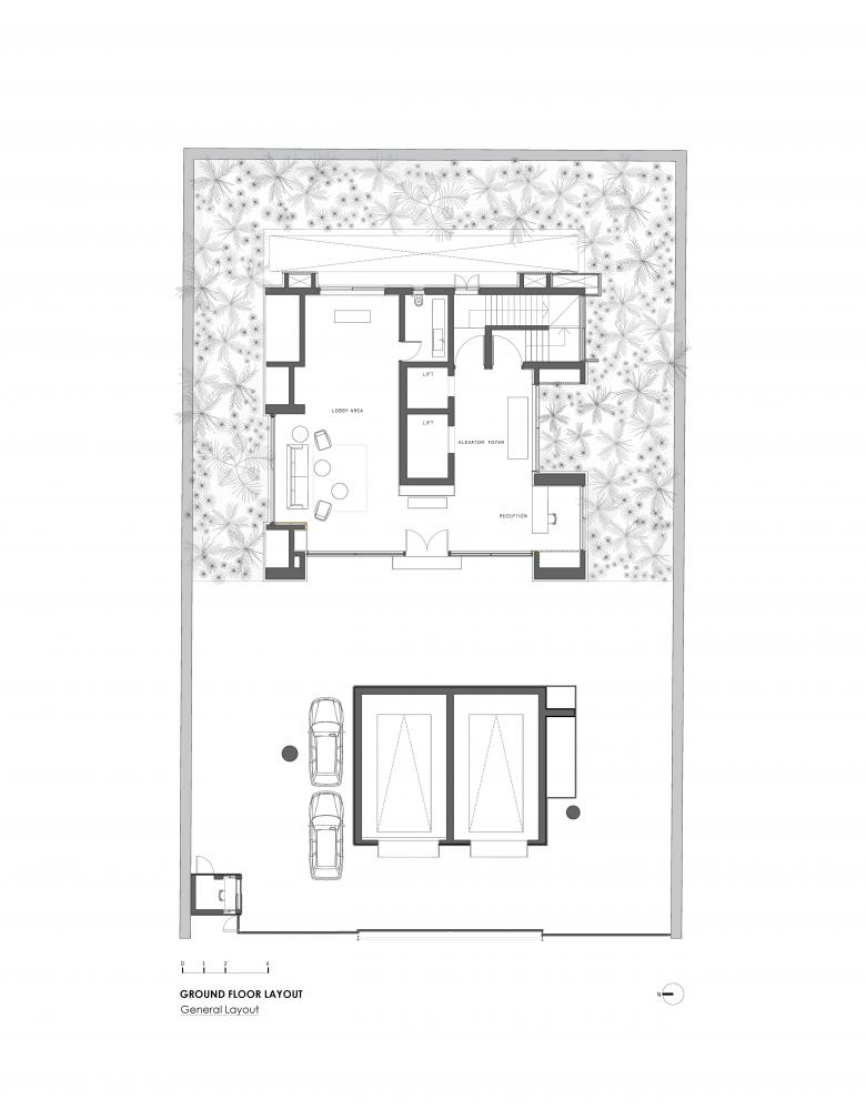
A defining gesture of the project is its invitation of greenery into every level of the building. A rich variety of native and ornamental flora lines the edges of each storey and the periphery of the site, forging an immersive connection to nature. This living envelope enhances not only the microclimate of the house but also reinforces its dialogue with the surrounding coastal landscape.
In its entirety, the home stands as a contemporary reinterpretation of coastal Bombay living, simultaneously modern in outlook and rooted in memory. It offers a refined yet grounded architectural response to the challenges and beauty of its context, embracing the intimacy of family life, the drama of monsoon skies, and the enduring romance of the city’s seaside legacy.
- Architects
- Spasm Design Architects
- Any
- 2025
- Estat del projecte
- Construït















