Logopädische Praxis Pattonville

John.-F.-Kennedy-Allee 31, Remseck, Germany
Wartebereich
Fotografia © BLU architekten

Der mulitilinguale Stadtteil Pattonville in Ludwigsburg ist der indeale Standort zur Eröffnung einer logopädischen Praxis, so die Auftraggeber Simone Blanek und Christina Wolff. Im neuen Stadtteilzentrum haben Sie eine offene Etage mit ca. 100 qm Nutzfläche angemietet. Die Entscheidung für einen Neubau haben die jungen Unternehmerinnen bewußt getroffen, denn Sie legten großen Wert auf eine großzügige und flexible Gestaltung der Inneräume.

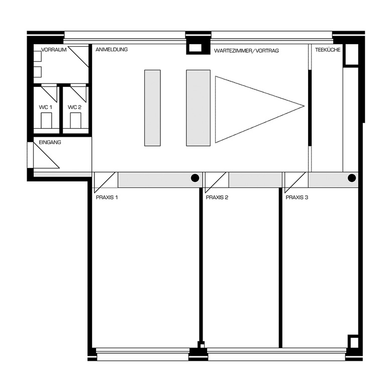
Die Praxis gliedert sich im Wesentlichen in zwei Raumbereiche. Die 3 Therapieräume und die „öffentliche Zone“ mit Empfang, Wartebereich und Küche. Um die Anforderung an normalen Praxisbetrieb und die Nutzung als Vortragsraum zu kombinieren, kann die „öffentliche Zone“ als ein Raumbereich der Nutzungssituation entsprechend über raumhohe Schiebetüren zusammengeschaltet werden. Von Beginn der Planung begleitete das Cooperate Design, von Designklinik, Björn Peters inhaltlich und visuell die Gestaltung der Räume. Der Sprachbaum vis a vis der Empfangsbox und das Orientierungsystem bilden mit der Gestaltung der Räume eine Einheit.

Sprechzimmer
Fotografia © BLU architekten
Grundriss
Dibuix © BLU architekten
Architects
BLU architekten
Any
2007
Estat del projecte
Construït
Client
Privat
Equip
Jan Blanek, Till Blanek, Boris Blanek
Corporate Design
Designklinik Björn Peters

Projectes relacionats 

  • Gymnasium Schulstraße
    Kronaus Mitterer Architekten
  • GROHE Water Experience Center
    D’art Design Gruppe GmbH
  • Limmatquai 4
    Kästli Storen
  • Volksschule Erlaaer Schleife
    Kronaus Mitterer Architekten
  • Ortsdurchfahrt Domat/Ems
    Luminum GmbH

Revista 

Altres projectes per BLU architekten 

Bildungszentrum West Neubau Verbinderbauten
Coswig, Germany
Vereinzelungsanlage SWR
Stuttgart, Germany
Wettbewerb Rohrer Höhe
Stuttgart, Germany
Wettbewerb Neubau Flugfeldklinikum
Böblingen, Germany
Machbarkeitsstudie Züblin-Parkhaus
Stuttgart, Germany