Longshang Books Cafe
No. 142 Meilong Road, Shanghai, China
No element changed, only the way presented.
Chemical Bookstore was located on Meilong Rd, Shanghai. It was a typical old style bookstore. What you saw is just as simple as bookshelves, everywhere full of books and several aisles. Books, people reading books and purchasing behavior constituted the space.
Regarding to the space shape and its content, it could be the most straightforward ‘bookstore’ that is so familiar with people. This point later is used as design method of the new bookstore, Longshang Books Café.
After investigating on ‘in what shape would the bookshelf be’, we found that a straight, parallel arrangement of bookshelf provides most route options possible. Unlike the original Chemical Bookstore, lined aisles are naturally formed by bookshelves, they also provides flexible moving directions.
The space combines bookstore, coffee and salon, these functions are differentiated but interacts with the other two. Therefore, a kind of ‘arch wall’ is applied. The element has been adopted in spacious salon area and bookshelf structures. Especially in the latter experience, sitting in the ‘arch wall’ reading, or browsing along the bookshelf backside becomes an interesting examination of these delicate correlation with people and environment.
The next step is to find the proper structure to support the bookshelf. Later when everything else is ready, the ‘arch’ arises after connecting with the bookshelves. The arch vault fits together with the support structure into one piece.
Given all the elements of an ideal bookstore: bookshelf, ‘arch wall’, supporting structure, arch. Located on Meilong road, how will it make contact with the environment?
Meilong road is an east-west street in southwest Shanghai. It runs through several old residential buildings.
On Meilong road, to the east of Longshang Books Café is East China University of Science and Technology (ECUST), and to the west lies 600 meter long metasequoia strip.
For better understanding of the new bookstore, original facade is completely changed. One entry door and one large scale window helps to draw more natural light inside. This decision was made after careful and positive examination on how much light should the ideal bookstore needs being replaced.
There are 3 ‘windows’. ‘Window 1’ is the entry door, from where the indoor circulation begins. ‘Window 2’ stands on the same exterior facade where the circulation ends. It also leads lower light in. ‘Window 3’ connects coffee bar and the book area, through which an Osmanthus tree and campus of ECUST could be seen.
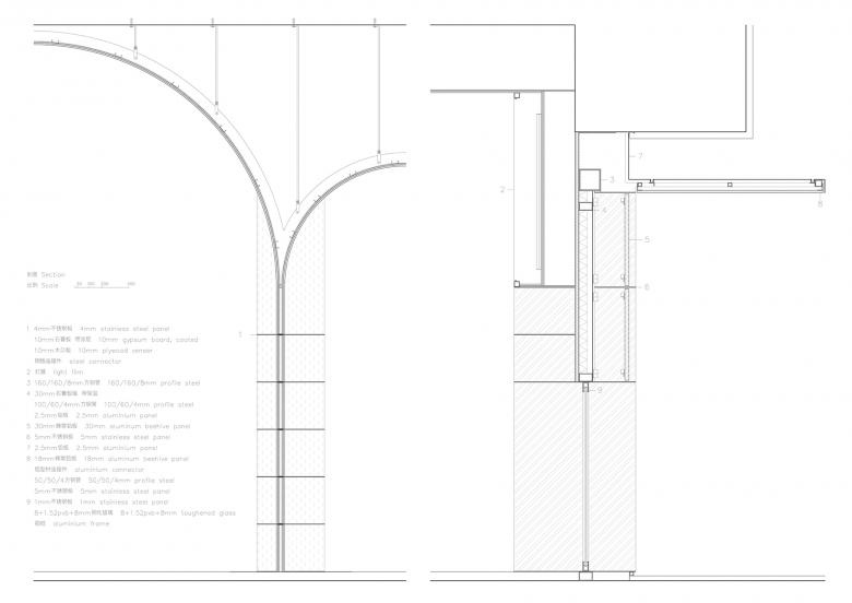
All bookshelves indoor are made of steel panel. Meanwhile, the curtain wall of exterior facade applies the same steel panel. Sharing the remarkable consistency, the facade acts as the corresponding point of indoor and outdoor.
In consideration of using the most basic, familiar material, besides the stainless steel panel, wood is commonly used as well. In combination of familiar material and unfamiliar structure, the feeling of space scale gets vague.
There are 20,000 books and 24 coffee seats In this 188 m2 space newly rebuilt.
- Architects
- atelier mearc
- Any
- 2018
- Estat del projecte
- Construït
- Client
- East China University of Science and Technology Press
- Equip
- Zhou Wei, Zhang Jun, Wang Qi, Yang Shuyu, Xu Xiwen
- Façade Consultant
- Compass Façade Consultant
- Lighting Consultant
- Mischen Lighting Design
- MEP Consultant
- Sanjiang MEP Consulting



























