Maestrani, Erweiterung Bürotrakt und Besucherbereich
Flawil, Switzerland
- Architects
- plan b architekten gmbh
- Any
- 2013
- Estat del projecte
- Disseny
- Client
- Maestrani Flawil
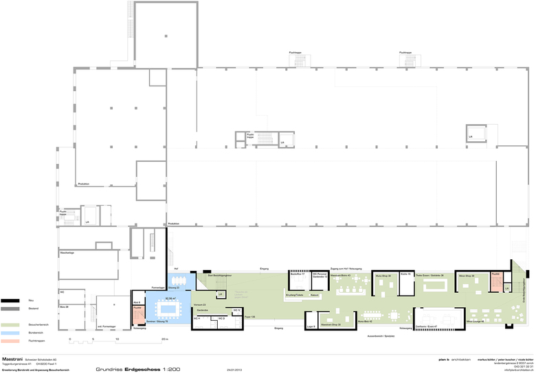
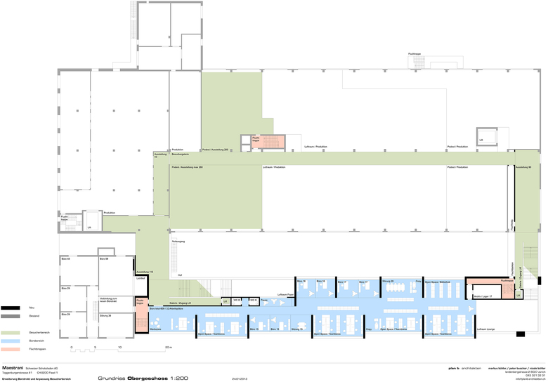
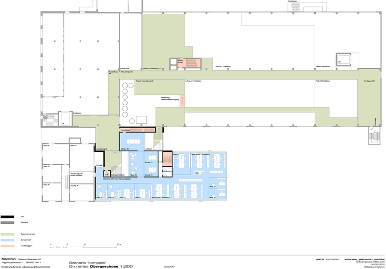
- Aufgabe
- Variantenstudien zum Ausbau des Besucherbereiches „Schoggiland“ und des Bürobereiches der Firma Maestrani in Flawil.
- Projekt
- 2011-2013













