Magnolia Office

Ahmedabad, India
Fotografia © Sachin Bandukwala

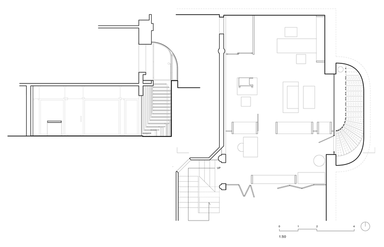
Tucked under an existing house, this office space takes advantage of the daylight with glass partitions and a fiberglass shade that wraps steel members to filter diffuse into the sitting area below.

The stair has been inserted into a light well, making the most of its dimensional constraints to function as both entry and security. Each tread is suspended individually from the beam above and anchored to form a space under shelter but still outside. In the space itself, translucent cabinets mark the division of waiting and meeting, and the simple, clean surfaces are punctuated with colorful and antique embellishments.

Fotografia © Sachin Bandukwala
Fotografia © Sachin Bandukwala
Fotografia © Sachin Bandukwala
Visualització © banduksmithstudio
Visualització © banduksmithstudio
Architects
banduk*smith*studio
Any
2012
Estat del projecte
Construït

Projectes relacionats 

  • Moos
    playze
  • Reiters Reserve Premium Suiten
    BEHF Architects
  • Erweiterung und Instandsetzung Hallenbad Altstetten
    MIYO Visualisierung
  • Neubau von fünf Einfamilienhäusern
    Bäumlin+John AG
  • The Forge in der 105 Sumner Street in London
    Kiefer Klimatechnik GmbH

Revista 

Altres projectes per banduk*smith*studio 

Mt. Abu Retreat
Mt. Abu, India
Party Wall Office
Ahmedabad, India
Wind House
Deesa, India
Regenerate Haveli
Ranchhodpura, India
2x2 terrace
Ahmedabad, India