Mehrfamilienhaus Birchstrasse, Zürich
Bauherrschaft: allgemeine Baugenossenschaft Zürich ABZ
Anlagekosten BKP 1-4: Fr. 4'000'000
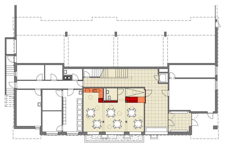
Energetische Sanierung und Umbau eines Wohnblocks aus den 70-er Jahren. Dem äusserst kompakt organisierten Plan mit je acht Kleinwohnungen entspricht die Anordnung des Hauptzugangs durch das unbelebte Untergeschoss.
Mit dem Einbau eines Gemeinschaftsraumes sollte diese Ankunftssituation aufgewertet werden. Ein rotes Schreinermöbel, das alle bedienenden Funktionen in sich vereint (Küche, WC, Garderobe, Schränke) zoniert den neuen Gemeinschaftsraum und zeigt sich zur Eingangshalle als Schaufenster, das den Vorbeieilenden einen kurzen Blick in den Raum gewährt.
- Architects
- Stalder & Buol
- Any
- 2010
- Estat del projecte
- Construït
Projectes relacionats
Revista
-
-
-
Bâtiment de la semaine
The Three-Body Problem: Trapped in a Wave Sandwich
Eduard Kögel, Scenic Architecture Office | 13.04.2026










