Mehrfamilienhaus Blume
Gschwaderstrasse 39, Uster
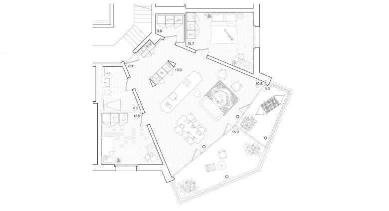
Nördlich des Stadtzentrums von Uster entsteht auf dem Areal der stillgelegten Gärtnerei, welches von vier- bis sechsgeschossigen Punktbauten umgeben ist, dass aus dem Oktagon entwickelte Mehrfamilienhaus mit 16 Mieteinheiten von 2.5 bis 4.5 Zimmer-Wohnungen. Der Schwerpunkt unserer Arbeit ist die Weiterführung der inneren Verdichtung des Gevierts mit einem Angebot von attraktivem Wohnraum umgesetzt mit qualitativer Architektur. Um sich in der bestehende Volumenstruktur zu behaupten, wird ein grossvolumetrisches Gebäude geplant. Eigenständig und prägend steht der Solitär neu in seiner Umgebung.
- Architects
- REICHLE ARCHITEKTEN
- Any
- 2022
- Estat del projecte
- Construït
- Client
- privat
Projectes relacionats
Revista
-
-
Bâtiment de la semaine
The Three-Body Problem: Trapped in a Wave Sandwich
Eduard Kögel, Scenic Architecture Office | 13.04.2026 -












