Mehrfamilienhaus Depotstrasse
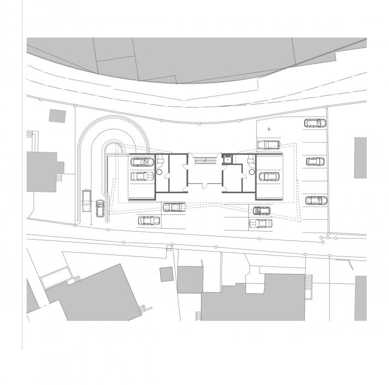
Form und Bauweise folgt der gegebenen, schwierigen Situation: Die gekurvte, rückseitige und geschlossene Wand zum Gleis der Wohlen-Dietikon-Bahn und die offene und mit auskragenden Balkonen geschützte Fassade nach Süden und zur Strasse. Das Gebäude nutzt die Möglichkeit eines 4. Geschosses und die Aufteilung der zur Verfügung stehenden Ausnutzung auf die oberen drei Geschosse. Das Erdgeschoss konnte so auf Stützen gestellt und mit beim Bahnhof dringend benötigten Parkplätzen versehen werden. Mit dieser Massnahme verbesserte sich auch die Wohnqualität der höher gesetzten Wohnungen, was zusätzlich die Mieteinnahmen verbessert und letztendlich die grösseren Baukosten rechtfertigt. Der schöne, leichte und elegante Bau folgt in seiner Formgebung nicht allein rein gestalterischen Absichten, sondern verbindet analog der Bauten im «Wydeweg» die Form, Ausnutzen und Funktion zu
einer guten Architektur mit hohem Wohnwert.
- Architects
- RUCH ARCHITEKTEN
- Any
- 2016
- Estat del projecte
- Construït
Projectes relacionats
Revista
-
-
Bâtiment de la semaine
The Three-Body Problem: Trapped in a Wave Sandwich
Eduard Kögel, Scenic Architecture Office | 13.04.2026 -








