Meili Primary School
Shenzhen, China
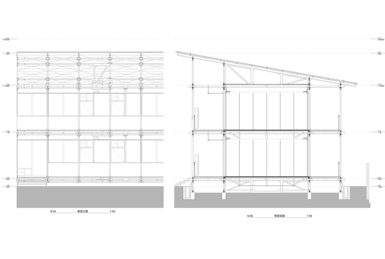
The school building of Meili School will be reconstructed to accommodate more students. A lightweight prefab school will be built for temporary use during reconstruction period.
- Any
- 2018
- Estat del projecte
- Construït
- Equip
- Prof. Zhu Jingxiang, Lau Hing Ching, Han Guori, He Yingjie, Fung Sze Wai Veera, Jiang Heng, Zou Huibing
- Manufacturer
- Xiping Jiahe Modular House Co., Ltd.
- Main Contractor
- China Construction First Building (Group) Corporation Ltd.
- Submission Unit
- Shenzhen General Institute of Architectural Design and Research Ltd.
- Agent Contractor
- Shenzhen Tagen Real Estate Development Industrial Co., Ltd.
- Engineering Consultant
- Arup Group Ltd.



















