MOMO ERA STUDIO徐汇店

上海徐汇, China
Fotografia © Atelier d'More 多么工作室

在繁华都市里MOMO ERA致力于为都市女性提供不同产品线的服饰。品牌在选址时,避开了直面熙攘的街道,而是拐进了一个创意园区内部,与街道喧嚣保持恰到好处的距离,以一种内敛专属的调性存在于园区中,这是一次对零售店的挑战,却也给设计带来了新的局面。业主委托多么工作室为其设计改造,并期望营造出一种与人亲近,自然纯粹且弥漫着旧时光韵味的购物环境,让每一位顾客都能感受到家一般的松弛与自在。最终,我们寻回到了一个亘古常新的议题“身体-空间”

到来、游走、选购、落座,为身体选择当下遮体的服饰,让心灵在此也得到片刻的遮盖,这是我们期待的空间所能体现的设计诉求。场地是沿园区内部主向道路展开的一座单体建筑,整体立面在早期园区第一次的改造中,稳重均质的混凝土梁柱体系被欧式造型装饰刻意地隐藏了起来。拆除附赘的装饰,显露在我们面前的是建筑结构原本真实的面貌,每隔三米一品的柱跨均质地连接起九个立面洞口,并托起了一个10米*30米微微隆起的人字坡顶,一个大屋子的意向顿时映射在空间内。为了能让人来到建筑前就感受到屋子的形象,我们需要赋予在建筑立面上一个新的屋顶——它带来了一条屋前的长廊,人从两端走来时,屋顶微微起翘,接近入口时,一反通常的店铺门面放大扩张的处理,它又平缓下躺,似乎有意遮掩内部熟客的热络,又似乎是要拉进距离,体贴你。附在其上的红雪松木瓦鳞次栉比地顺着曲面屋顶一路爬进了室内,在结束于空间高处的位置,人造天光从上洒下,浇淋在每片不同角度的木瓦面上,光影、形态在建筑柱廊间舒展、隐现,至此,屋子有了一个正面的形象。

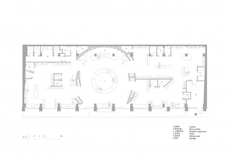
随着空间向内展开的是位于中央的前厅“内院”,圆形中岛收银台在此既是室内迎客的流线起点,也是选购的终点。两侧的陈列区入口墙面像泥塑般地拿捏糅合后,在互相映衬下谦逊地围绕着中岛前行显现。整个弧形背景面沿居中线向两侧从原墙面上逐渐分离出,又向中岛区缓缓收拢,模拟品牌字形的几何壁龛安静地嵌入其上,没有多余的装饰,瞩目、却不张扬。来此,无论是采买还是休息,“内院”总以包容的姿态等待着每一位客人。

围绕着“内院”两侧的流线,彼此串联起三个陈列区域,摈弃了集合式的试衣区布置方式,而赋予其独自的体量形象,拖长的尾部、聚拢的顶口、上扬的角线、从立柱上剥离出的墙面、在转角处凹陷下去的开口,使原本规矩的轮廓,呈现为互相呼应的柔和“小屋”,有机地错落在空间流线上。而在角落,仓库、卫生间顶面外形也故意放低作斜坡状,让它们看起来更有小屋的形象。

为了契合屋子亲人的属性,在材料选择上以小替大、以旧替新——没有用大面材料整铺地面,而是用10厘米*10厘米的小块莱姆石,它以“内院”中心成环形放射状铺贴,在圆形前台桌的边界立面上,又顺势错缝攀爬而上;而与人直接接触的家具制品,用的是从旧门板上拆解下来的老榆木条板,通过再次的排版、剪裁、上色,注入其全新的功能意义;空间整体的漆面色按擦色涂染的工艺方式,呈现斑驳的印迹,为空间平添了材料本身的年代感。未采用成品的明装商业照明灯具,而是手工拼制一个个球形灯,半嵌入吊顶腔体内,隐去了灯具的底座,显出了悬浮的光源轮廓,这也为屋子装扮了新意。

我们尽可能地去调和项目中客观因素和需求,让它们有适合的存在方式。加厚的廊柱是因为原结构柱内外的尺寸差异,新塑的契形柱身,经打磨后,更显温润古朴的质感;被吊起的“木梁”是为了满足成衣吊索的安装需要,用传统的咬合方式锁扣在现代混凝土梁上,最终却像是过去木梁记忆的一个片断;贴近结构梁底的吊顶斜坡是为躲过上方的空调管道,于是有了一个完整通长的人字坡顶。因此,从整个施工角度而言,并非物理意义上地盖了一座完整屋子,但当客人歇脚落座后,目光跟随空间的轮廓延伸,或许刹那间,这个非建造意义上的屋子回响了另一个曾经到达过的屋子——我们被庇护过,同样在一处低矮的坡顶下;我们驻足过,同样在一片长长的屋廊前,而下意识地拉下衣领,是熟悉的贴身记忆。

Fotografia © Atelier d'More 多么工作室
Fotografia © Atelier d'More 多么工作室
Fotografia © Atelier d'More 多么工作室
Fotografia © Atelier d'More 多么工作室
Fotografia © Atelier d'More 多么工作室
Fotografia © Atelier d'More 多么工作室
Fotografia © Atelier d'More 多么工作室
Fotografia © Atelier d'More 多么工作室
Fotografia © Atelier d'More 多么工作室
Fotografia © Atelier d'More 多么工作室
Fotografia © Atelier d'More 多么工作室
Fotografia © Atelier d'More 多么工作室
Fotografia © Atelier d'More 多么工作室
Fotografia © Atelier d'More 多么工作室
Fotografia © Atelier d'More 多么工作室
Fotografia © Atelier d'More 多么工作室
Fotografia © Atelier d'More 多么工作室
Fotografia © Atelier d'More 多么工作室
Fotografia © Atelier d'More 多么工作室
Fotografia © Atelier d'More 多么工作室
Fotografia © Atelier d'More 多么工作室
Fotografia © Atelier d'More 多么工作室
Fotografia © Atelier d'More 多么工作室
Fotografia © Atelier d'More 多么工作室
Fotografia © Atelier d'More 多么工作室
Dibuix © Atelier d'More 多么工作室
Dibuix © Atelier d'More 多么工作室
Architects
Atelier d'More 多么工作室
Any
2024
Estat del projecte
Construït

Projectes relacionats 

  • Moos
    playze
  • Reiters Reserve Premium Suiten
    BEHF Architects
  • Erweiterung und Instandsetzung Hallenbad Altstetten
    MIYO Visualisierung
  • Neubau von fünf Einfamilienhäusern
    Bäumlin+John AG
  • The Forge in der 105 Sumner Street in London
    Kiefer Klimatechnik GmbH

Revista 

Altres projectes per Atelier d'More 多么工作室 

书一·飞鸟集自习室 | 多么工作室Atelier d'More
Shanghai, China
京呆民宿
Beijing, China
寸二民宿
北京,中国, China
壹心空间自习室
China
素颜的童话世界 | 多么工作室Atelier d'More
Shanghai, China