Holzwohnbau, Breitenfurterstrasse 450-454
Breitenfurterstrasse 450-454, Wien, Austria
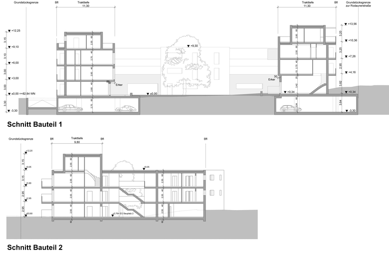
Einer der wenigen mehrgeschossigen Holzwohnbauten in Wien wurde von P.GOOD Architekten verwirklicht. Das Projekt zum Thema GenerationenWohnenRodaun konnte Ende Juni 2013 fertiggestellt werden. Es wurde eine Struktur entwickelt, die es gestattet, alle Wohnungen zum Grünraum in Ost-West Richtung zu orientieren. Durch die Laubengangtypologie werden die Wohnungen effizient erschlossen und vor dem Lärm der Straße geschützt.
Ziel war es in sozialer, ökologischer und wirtschaftlicher Hinsicht alle Anforderungen an nachhaltiges Bauen und Wohnen in der Stadt zu erreichen.
Ausgangspunkte
1) Verwendung von Holz als Primärbaustoff
2) Die Lage der Bauplätze am Kreuzungspunkt von zwei stark befahrenen Straßen mit hoher Emission
3) Der vorhandene Grünraum mit ausgeprägter Topografie und schönem Baumbestand
4) Die städtebauliche Struktur des Gebietes - Eine Mischung aus Gemeindebausiedlungen und Einfamilienhäusern
Soziale Nachhaltigkeit
Integration verschiedener Generationen und Lebensformen – Aufnahme von wichtigen Funktionen, die im ehemaligen Gemeindebau untergebracht waren, wie der Seniorenclub
Flexibilität der Grundrissen
Tragwerksidee
1) Wandsystem in Brettsperrholz und Holzriegelbauweise
2) Deckensystem in Brettsperrholz
3) Gebäudeaussteifung in Kombination mit den mineralischen Stiegenhauskernen
4) Kellergeschoß in mineralischer Bauweise
- Architects
- P.GOOD Praschl-Goodarzi Architekten ZT GmbH
- Any
- 2013
- Estat del projecte
- Construït












