Museum Regiunal Surselva
Städtlistrasse 10, Ilanz, Switzerland
Seit über 30 Jahren besteht das Museum Regiunal Surselva und betreibt eine Kulturinstitution, welche das regionale Kulturerbe sammelt, aufbewahrt, ausstellt und weitervermittelt.
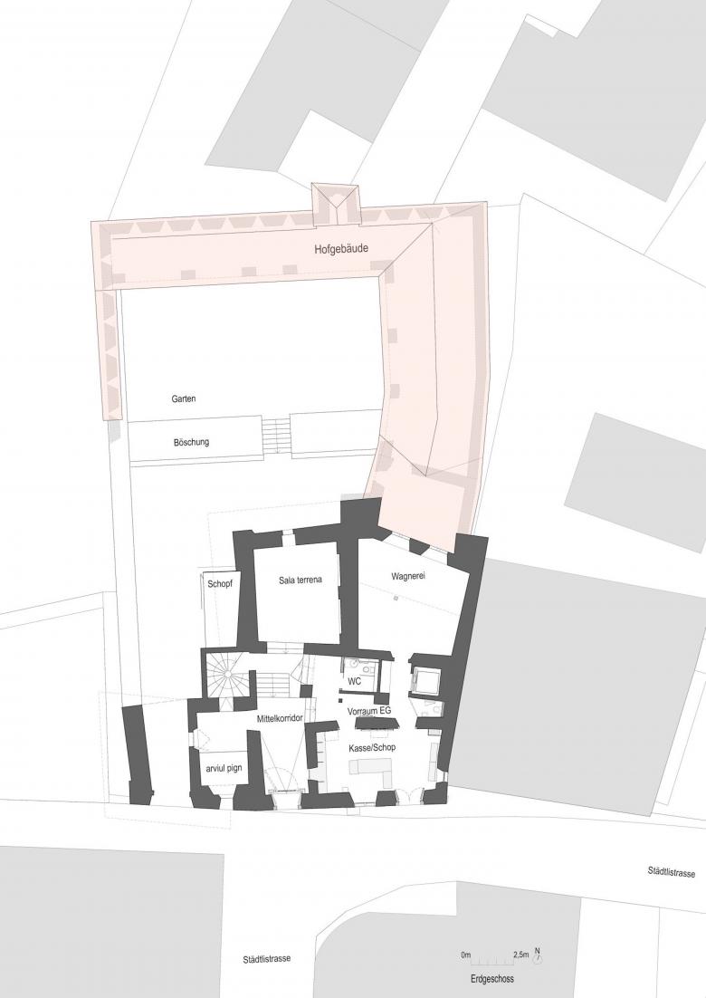
Das denkmalgeschützte Museumsgebäude, die Casa Carniec in der Altstadt von Ilanz, war 2018 in die Jahre gekommen und brauchte eine Sanierung. Am augenscheinlichsten war das bei der Fassade zur Städtlistrasse feststellbar. Es waren Investitionen nötig, einerseits um die Bausubstanz zu erhalten sowie die Energiekosten zu senken, andererseits um die Sicherheit der Ausstellung und die Dienstleistungsqualität für das Publikum zu erhöhen.
Im Jahr 2026 folgt nun die Modernisierung der Dauerausstellung.
- Architects
- Curschellas & Gasser Architekten ETH FH SIA
- Any
- 2018 / 2026
- Estat del projecte
- En construcció













