Nanchang NIO House
World Trade Plaza, 1706 Honggu Middle Avenue, Honggutan, Donghu District, Nanchang, China
The living room of a water town - Nanchang NIO House
Founded in 2014, NIO is an innovative electric automotive company focusing on high-performance products. It is also committed to the vision of a global user community by establishing “NIO House” around the world. After identifying a design benchmark with bigger flagships, the brand is ready to set foot in all cities. Lukstudio has been commissioned to create the first NIO House in Nanchang.
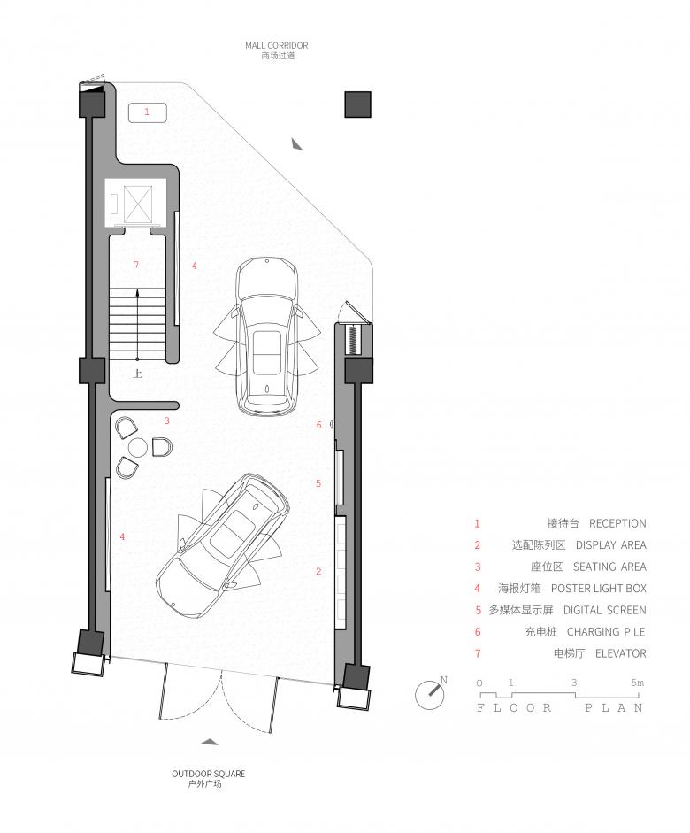
The site is at a shopping mall with a 2-storey storefront. An open gallery approach is key to the first floor display area with two entrances. Given the white terrazzo wall and floor, mirror stainless steel ceiling are the standard materiality, our effort is in streamlining all sharp corners and adopting diffused light details, giving the overall high-tech ambience a softer touch.
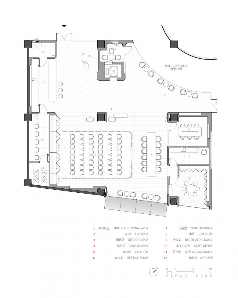
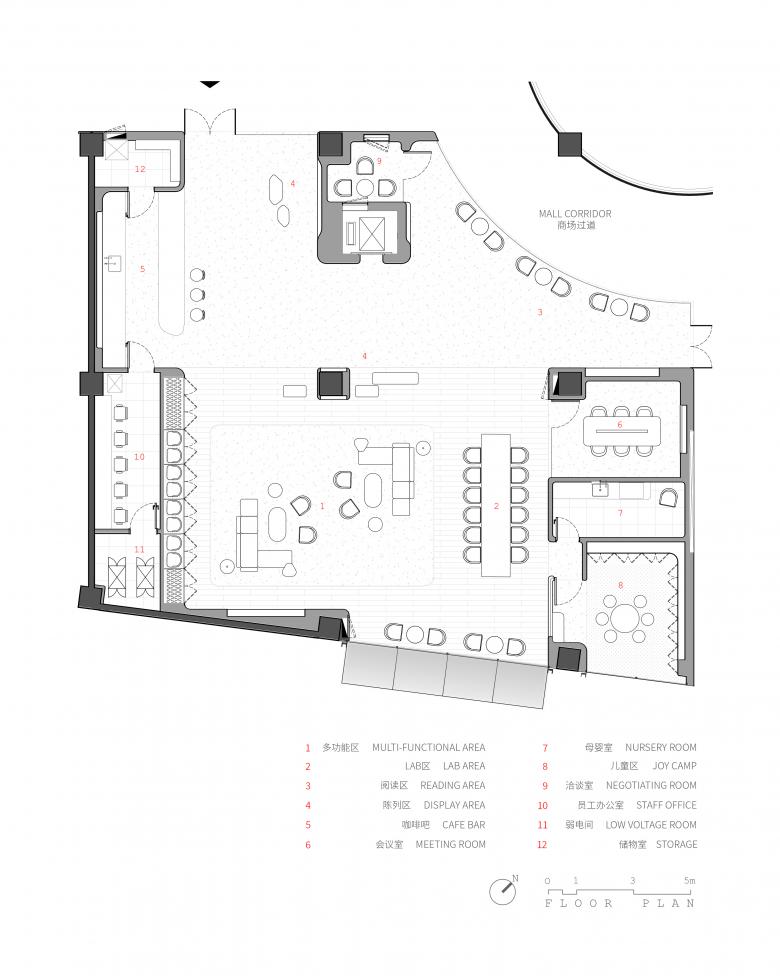
Taking the elevator onto the second floor, one would arrive at another white gallery, but this time with a continuous arched ceiling. Inspired by water waves, the distinctive feature pays tribute to the water town identity of Nanchang and brings a lightness to the space. Under the rhythmic undulation, terrazzo cafe counter, display wall niches and booths are all shaped with streamline details, as if a stonescape polished by flowing water.
Contrasting to the austere white gallery, the adjacent multi-functional space finished in oak wood looks extra cozy. A meeting room, a nursery and a children’s playroom are located along the east wall, while the west cabinet stores all the stools and curtains necessary for converting the “living room” into a conference space. Apart from modular sofas and lounge seats, the open space also comes with a 5m-long communal table equipped for many types of gathering. Integrating subtle curves in its structure, the bespoke table appears to have its top lifted from the sides, conveying a weightlessness and echoing the water current theme.
In the Nanchang NIO House project, Lukstudio takes on a challenge to optimize a predefined framework and comes up with ideas connecting to its site context. Our focus on humanscale experience and attention to details reinforce NIO brand’s user-centric vision. The resulting “living room” is a service hub where potential and existing car owners come together and build a progressive community of the future.
- Architects
- LUKSTUDIO
- Any
- 2021
- Estat del projecte
- Construït
- Client
- NIO
- Equip
- 陆颖芝, 张一诚, 王海鑫, 戴敏
- Lighting Consultant
- SHUMUNG lighting design
- TOPIN
- General Contractor
































