Neápolis building. Space for the technology and ideas
Rambla de l'Exposició, Vilanova i la Geltrú, Spain
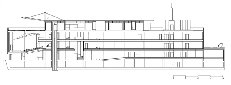
El programa plantejat per l’Ajuntament de Vilanova i La Geltrú es referia a un edifici que recollís diversos serveis locals de comunicació, al voltant dels quals es poguessin oferir també espais d’experimentació i aprenentatge, un centre d’alta tecnologia. Les funcions puntuals a ubicar eren: la instal·lació de la TV i la ràdio locals, una sala de conferències per a 200 persones, un ciber-bar, un espai polivalent amb possibilitat d’exposicions, diversos locals amb funció poc definida destinats a allotjar els diferents camps tecnològics de la comunicació i unes aules d’us ocasional segons uns programes a definir. La forma de l’edifici respon a evidents consideracions urbanístiques: un espai amb planta oval que resol el tema del difícil encreuament de la Rambla de l’Exposició amb l’Avinguda Eduard Toldrà i un espai trapezoïdal que s’adequa a la estricta ordenació arquitectònica de la Rambla i ofereix una façana al jardí posterior. Aquesta disposició correspon també a una calcificació funcional: en el primer cos s’hi ubica el bar i la sala de conferències i en el segon la TV, la ràdio i els espais d’experimentació, aprenentatge i exposició. El primer és un recipient molt opac revestit de plaques d’alumini i el segon és una massa de totxo amb finestres rectangulars modulades que, a la façana S., es protegeixen amb un parament de vidre serigrafiat, el qual serveix alhora per a marcar la continuïtat volumètrica i espacial del pòrtic imposat normativament a la Rambla. Entre els dos cossos se situa el vestíbul transversal d’accés que te l’alçada dels tres pisos i crea una visió unitària de tot l’espai.
- Edificis Públics
- Cultura
- Educació
- Institucional
- Indústria
- Universitats
- Instalacions per la recerca
- Sales de Concerts + Auditoris
- Centres Tecnològics
- Architects
- MBM Arquitectes
- Any
- 2008
- Estat del projecte
- Construït














