Neubau Haus in Dobbin
Dobbin, Germany
Wohnhaus und Atelier für eine Künstlerin
Mecklenburg-Vorpommern (DE), 2016-2018
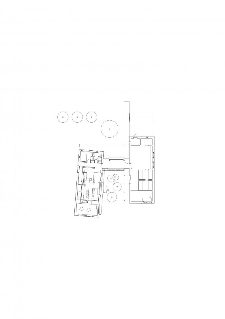
Das Projekt umfasst die Komposition dreier einfacher Objekte: Haus, Fotoatelier und Eingangsbereich/Verbindungsglied.
Die beiden Hauptbauten sind schmal und lang. Ihre Proportionen erinnern an die Gebäude der Nachkriegszeit entlang der Strassen im Dorfkern.
Das Gebäude befindet sich in der Mitte der Parzelle, in einer sehr weitläufigen, flachen Gegend mit wenigen umliegenden Bauten.
Das Projekt stellt einen direkten Bezug zur Landschaft her. Es möchte sie umschliessen und mit dem von Bogengängen umgebenen Hof zwischen die Häuser «einfliessen» lassen.
Das Thema der Wege prägt das gesamte Erdgeschoss. Der Raum ist kontinuierlich und ununterbrochen. Eine Folge von Ausdehnungen/Verdichtungen bestimmt in der Länge die lineare Ausrichtung.
Der Wechsel zwischen den verschiedenen Funktionen kommt in der leicht variierenden Höhe des Bodens und der Decken (doppelte Höhe im Haus, tiefere Höhe im kleinen Arbeitszimmer im Atelier) zum Ausdruck.
Die Objekte sind aussen einfach und kompakt. Im Inneren weisen sie hingegen eine räumliche Komplexität auf, die sich mit dem Thema Hohlräume, mit dem «Entfernen» von leerem Raum befasst.
Das Dach des Ateliers ist nahezu flach. Dadurch soll einerseits die Bestimmung als Arbeitsort unterstrichen und andererseits die Sicht auf die Landschaft vom zweiten Stock des Hauses aus frei bleiben.
- Architects
- Ruinelli Associati AG
- Any
- 2018
- Estat del projecte
- Construït






















