Neubau Häuser im Gatter
Thayngen, Switzerland
Im Dorfzentrum Thayngens entsteht am Rande der Kernzone neuer Wohnraum. Das Bauernhofensemble wird in seinen ursprünglichen Erbauungszustand zurückgeführt. Das 150-jähriges Wohnhaus wird umgebaut, kernsaniert und die, über die Jahrhunderte gewachsene instabile, marode Ökonomiestruktur durch einen 3-Spänner Erweiterungbau mit unterirdischer Parkierung ersetzt.
Die abgedrehte Setzung des Erweiterungsneubaus parallel zur Strasse schliesst die Baulücke in der Häuserzeile der Gatterstrasse typologisch und promenadenartig. Der Versatz im Grundriss zwischen den beiden Baukörpern dient der Belichtung der Fassaden und gliedert strassenseitige Vorplätze. Die Körnung der bestehenden Bauvolumen werden mit dieser Setzung fortlaufend ergänzt, neue Freiräume aufgespannt.
Die einstigen Ökonomiegebäude des Bauernhofes werden aufgrund ihrer instabilen Struktur zugunsten einer unterirdischen Parkierung zurückgebaut. Diese Entwicklung eröffnet die Möglichkeit für eine umfassende Neugestaltung und Neuausrichtung des Gesamtensembles. Das bäuerliche Wohnhaus wird mit Hinblick auf die ortsübliche Bautypologie architektonisch seinem Ursprung angeglichen.
Die Setzung parallel zur Gatterstrasse gliedert im Norden einen strassenabgewandten Grünraum, welcher der Gemeinschaft und den Anwohnern zugutekommt. Der Bezug zum Strassenraum wird über zwei Achsen gewährleistet. Der Versatz und das Abdrehen der Volumen führen zu einer deutlichen Qualitätssteigerung für beide Wohnbauten hinsichtlich Aussicht, Durchsicht und Privatsphäre.
Der Haupteingang für beide Gebäude ist effizient vom Strassenraum aus erreichbar. Ein Grossteil der Parkfläche befindet sich unterirdisch, wodurch die verfügbare Grünfläche auf dem Grundstück maximiert wird. Die Ausrichtung der Wohngebäude ermöglicht eine effiziente Nutzung der Sonneneinstrahlung, sowohl als Energiequelle als auch für die abendliche Besonnung des Grünbereichs.
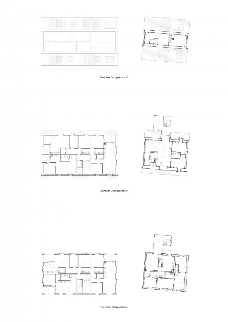
Über einen Verbindungsgang im Untergeschoss werden die beiden Baukörper miteinander verbunden. Die Parkgarage wird von beiden Häusern gemeinsam genutzt. Durch die exzentrisch gesetzten Erschliessungskerne entsteht ein diverser Wohnungsmix: 2.5-, 3-, sowie 3.5-Zimmer-Wohnungen. Alle Wohnungen sind barrierefrei erschlossen. Das Bauernhaus wird hinsichtlich verdichteter Bauweise von einer Wohneinheit in neu 4 Wohnungen transformiert. Der Erschliessungsturm mit Balkonflächen dockt als filigrane Stahlkonstruktion an die nördliche Fassade an und spielt gegenüber dem Bestand zusätzliche Wohnfläche frei.
Im Bestand bleibt viel belassen und erhalten. Es entsteht ein besonderer Ausdruck, die Geschichte des Hauses bleibt ablesbar. Der Dachstuhl, die alten Deckenbalken, Fachwerkwände und Bruchsteinwände sind frei gelegt und aufbereitet. Die übrigen Wände erhalten innen einen neuen mineralischem Dämmputz. Das Dach ist aufgedämmt, alle Fenster mit neue Holzfenstern ersetzt. Der Neubau ist als monolithischer Massivbau konzipiert. Das Einsteinmauerwerk wurde innen als auch aussen mit einem mineralischem Kalk-Putz verputzt. Die Dachkonstruktion aus Holz wird mit Tonziegel bedeckt.
Die Materialwahl wurde kontextbezogen ausgewählt und abgestimmt. Der leicht weiss eingefärbte Anhydritestrich sowie die hellen Oberflächen der Wände und Decken nehmen sich zurück und passen stimmig zu den holzigen Oberflächen der Fenster und Türen sowie der Balken und Bruchsteinwände. Die Verwendung von regionalen und naturbelassenen Materialien entspricht ganz der gewünschten Philosophie und ermöglicht gleichzeitig ein natürliches Klima, welches atmet und entsprechend die Raum- und Luftqualität positiv prägt und aktiv beeinflusst.
Auf eine kontrollierte Wohnraumlüftung wurde bewusst verzichtet, um die Technik im Gebäude möglichst gering zu halten. Die Gebäude werden über Fernwärme geheizt und verfügen ausserdem jeweils über eine Photovoltaikanlage.
- Architects
- Bareiss Architektur AG
- Any
- 2025
- Estat del projecte
- Construït





















