Neubau MFH, Ettingen
AUSGANGSLAGE
Eine Familie, bestehend aus vier Parteien, möchte auf ihrem Grundstück ein Mehrgenerationenhaus realisieren. Ziel ist es vier gleichwertige 4 ½ - 5 ½ Zimmer Wohnungen zu generieren.
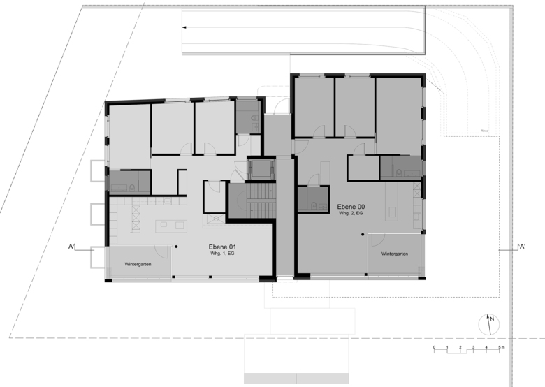
Die Schwierigkeit bestand darin, das Baugesetz so auszuloten, dass zwei Wohnungen auf einem Geschoss möglich wurden.
LÖSUNGSANSATZ
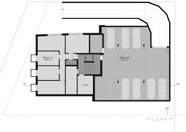
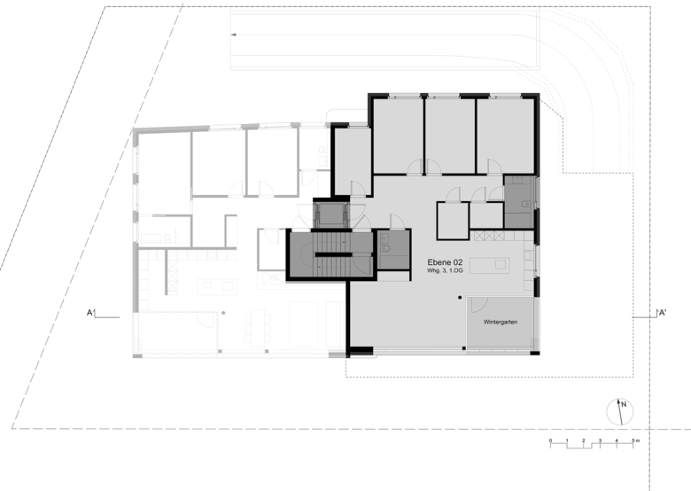
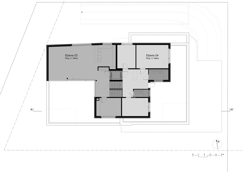
Charakteristisch für das projektierte Mehrfamilienhaus ist die Anordnung der Geschosse im Splittlevel. Dies bietet sich an, da das Grundstück eine Hanglage mit einem Niveauunterschied Ost-West von einem halben Geschoss aufweist. Im Westen treten ein Vollgeschoss und ein Attikageschoss, im Osten zwei Vollgeschosse und ein Attikageschoss zum Vorschein. Darunter befinden sich im Westen ein Kellergeschoss und im Osten eine Einstellhalle.
Das Gebäudevolumen ergibt sich aus der baurechtlichen Konstellation der Parzelle. Auf allen Seiten bestimmen die Grenzabstände die bebaubare Fläche. Die Parzelle wird nördlich erschlossen, wo sich die Einfahrt der Autoeinstellplätze und der Eingang zu den Wohnungen befinden. Im Süden rundet eine grosszügige Gartenfläche mit gemeinsamer Sitzplatzgelegenheiten die Parzelle ab.
Drei Wohnungen verfügen über einen Wintergarten, der den Wohn- und Essbereich erweitert. Die Attikawohnung erstreckt sich über zwei Splittlevelgeschosse und besitzt zwei Terrassen.
Die Fassade setzt sich aus diversen Flächen mit vertikaler Putzstruktur zusammen, welche das Volumen unterteilen und ein gewisses Spiel geben.
- Architects
- Lo Verdi Architekten AG ETH/SIA
- Any
- 2018
- Estat del projecte
- Construït


















