Neubau Stroh-Lehm Haus in Villarepos
La Fayaula, Villarepos, Switzerland
Aufgabe: Neubau eines autarken null Energie Holz-Stroh-Lehmhaus mit Carport in Villarepos
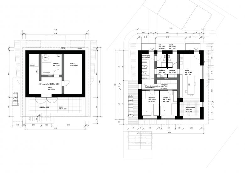
Planung: Der Grundriss wurde für eine bessere Wärmeverteilung um den Grundofen geplant. Vorbereitungen für den Umbau zum Zweigenerationenhaus bereits getroffen.
Heizen: Ohne Strom und Co2 neutral mit einem Grundofen mit Stückholz
Stampflehmwände als thermische Speicher (Kühlen im Sommer/ Wärmen im Winter)
Warmwasser: Durch thermische Solaranlage
Strom: Grosse Photovoltaikanlage zur Stromversorgung inkl. Speicher. Das Haus ist nicht am Stromnetz angeschlossen
Regenwasser: Regenwassernutzung für alle Sanitärapparate (Tank 8000l/mit Osmosefilter)
Fassade: Holzfassade mit Strohballen als Dämmstoff
Flachdach: Holzstapeldecken mit Strohballen als Dämmung
Keller und Fundament: Aus Natursteinblöcken mit Kalk-Zement-Mörtel (Kein Beton)
Innenwände: Lehmputz auf Schilfmatten aufgezogen.
- Architects
- HUMBERT PÖRNER AG
- Any
- 2015
- Estat del projecte
- Construït
Projectes relacionats
Revista
-
-
Bâtiment de la semaine
The Three-Body Problem: Trapped in a Wave Sandwich
Eduard Kögel, Scenic Architecture Office | 13.04.2026 -


















