Neubau SVSA Strassenverkehrs- und Schifffahrtsamt Kanton Bern
Münchenbuchsee, Switzerland
Das Strassenverkehrs- und Schifffahrtsamt des Kantons Bern und das Kompetenzzentrum Schwerverkehr werden in einem Neubau organisatorisch und örtlich zusammengelegt. Das Grundstück liegt am Siedlungsrand von Münchenbuchsee und am Rande einer Gewerbezone. Der Perimeter ist topografisch aufgeteilt in eine nördliche Ebene und südliche Hangpartie. Im Norden und Osten grenzen Gewerbebauten an den ebenen Parzellenteil. Entlang der westlichen Grenze werden die eingedolten Bachläufe renaturiert, was den Übergang zum Landschaftsraum markiert. Dieser öffnet sich als weiträumige Ebene mit Kulturland nach Westen.
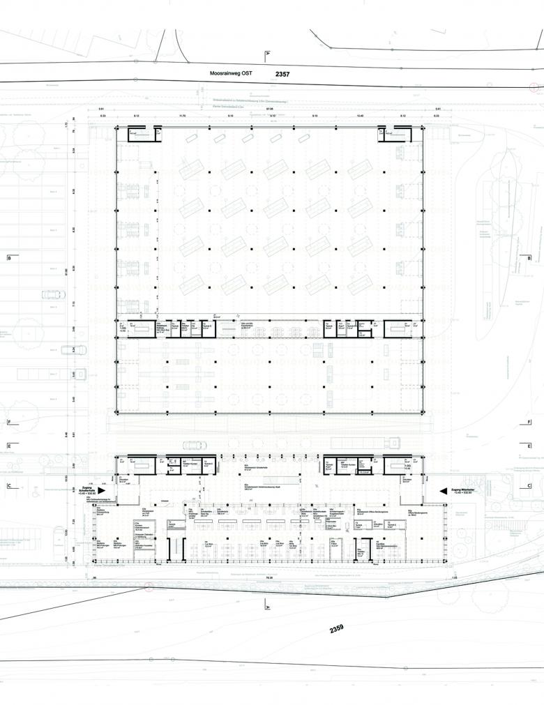
Der Neubau wird mit dem Hang organisiert und parallel dazu ausgerichtet. In der Ebene werden die überhohen Prüfhallen mit den dazugehörigen Aussenfunktionen angeordnet. Die Schalterhalle mit Haupteingang hingegen wird südlich im Hang platziert, eingebettet in einen grosszügigen Grüngürtel, der das Grundstück 3-seitig einfasst. Durch die parallele Setzung zum Hang findet das Projekt einen möglichst behutsamen Umgang mit dem Terrain.
Die abgestufte Organisation des Erdgeschosses führt zu einer Entflechtung zwischen dem starken Verkehrsfluss in der Ebene und der beruhigten Ankunftssituation am Hang. Die Hauptnutzungen für Gäste – Prüf- und Schalterhallen – sind übersichtlich aufgereiht und markieren die Adressen des Neubaus.
Mit dem Projekt wird ein gemeinsames Haus für alle Nutzungen unter einem Dach geplant. Durch die Stapelung des Raumprogramms entsteht ein 3- bzw. bei den überhohen Prüfhallen ein 2-geschossiger Neubau, dessen Hauptfassade sich nach Westen ausrichtet. Das neue SVSA ist daher von weitem sichtbar und prägt die Dorfeinfahrt nach Münchenbuchsee als Landmark.
Der Name vom Projekt «Einer für Alle» erläutert im Grundprinzip bereits den Erschliessungsgedanken des Gebäudes. Die offene und übersichtliche Erschliessung im 2. OG verbindet sämtliche Nutzungen über die vertikalen Kerne und lässt so einen maximalen Spielraum für die Verteilung der Büro’s und Abteilungen zu. Alle Funktionen auf den verschiedenen Geschossen sind über die vertikalen Kerne über kurze Distanzen gut erschlossen.
Durch eine prägnante Tragstruktur in Holzbauweise werden die unterschiedlichen Nutzungen, ähnlich einem Raumgitter, zusammengehalten. Differenzierte Dimensionierungen und Achsabstände verweisen auf das vielfältige Innenleben, das einheitliche Tragsystem sorgt aber für einen harmonischen Gesamtausdruck. Dabei entwickelt der Entwurf aus dem sichtbaren Fügen der einzelnen Holzbauelemente seine gestalterische Kraft, die eine Brücke zwischen Zweckbau und Landmark zu schlagen vermag.
- Architects
- STUDIOMORI Architektur + Städtebau
- Any
- 2022 - 2030
- Estat del projecte
- Disseny
- Projektwettbewerb im offenen Verfahren
- 1.Rang
- Leistungsphasen
- 21-53
- ARGE
- KNTXT Architektur GmbH








