Neubau Tour de Suisse Rad AG
Kreuzlingen, Switzerland
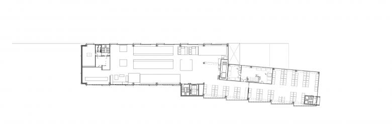
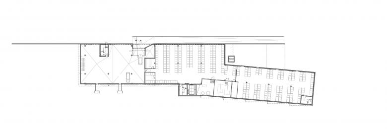
Direkt am beliebten Radweg um den Bodensee in Kreuzlingen entstand das neue Gebäude der Firma „Tour de Suisse Rad AG“. Das Gebäude verbindet Produktion, Büro, Lager, Ausstellungsfläche und ein Café unter einem Dach. Eine markante Eingangsfassade in Sichtbeton bespielt den vorgelagerten Platz. Von dort aus entwickelt sich das Gebäude auf zwei Geschossen entlang der Seetalstrasse und der Geleise. Ein grosses Schaufenster bietet Platz zur Präsentation der Firma und ihrer Produkte, und im offenen Café- und Ausstellungsbereich geben grossformatige Öffnungen Einblick und ermöglichen eine gute Belichtung der Arbeitsplätze.
Auftraggeber:in
Tour de Suisse Rad AG, Kreuzlingen
Architektur moos. giuliani. herrmann. architekten.
Linda Reich, Stephan Melcher, Roman Giuliani, Juval Mori
Arbeitsgemeinschaft mit SLIK Architekten, Zürich
Bauleitung
moos. giuliani. herrmann. architekten., Diessenhofen
Statik
Rolf Soller AG, Kreuzlingen
Bauphysik
Herrmann Partner AG, Andelfingen
Haustechnik
3-Plan Haustechnik, Kreuzlingen
Elektro
Preluce AG, Frauenfeld
Landschaft
Rotzler Krebs Partner GmbH Landschaftsarchitekten, Winterthur
Fotografie
Lukas Murer, Fotoarbeiten, Zürich
Spezialist:innen
Ausstellung: ID-Connect AG, Winterthur
Lichtplaner: Preluce AG, Frauenfeld
Eckdaten
Produktion, Ausstellung, Büro und Lager
Baubeginn: August 2017
GF SIA 416: 5297 m²
Bauzeit: 16 Monate
Bauvollendung: November 2018
- Architects
- moos. giuliani. herrmann. architekten.
- Any
- 2018
- Estat del projecte
- Construït

















