New Aarhus School of Architecture
Aarhus, Denmark
Inspired by 21st century learning principles, the new Aarhus School of Architecture was designed as an incubator for architectural experiments, workshop-based learning and unplanned synergies between students. The architecture is raw, almost resembling an industrial building, but only at first glance – the refined detailing and strong spatial organization deliberately communicates how a building is constructed; how to refine a design through a few carefully selected materials and how to allow architecture to step into the background as a flexible framework for activity.
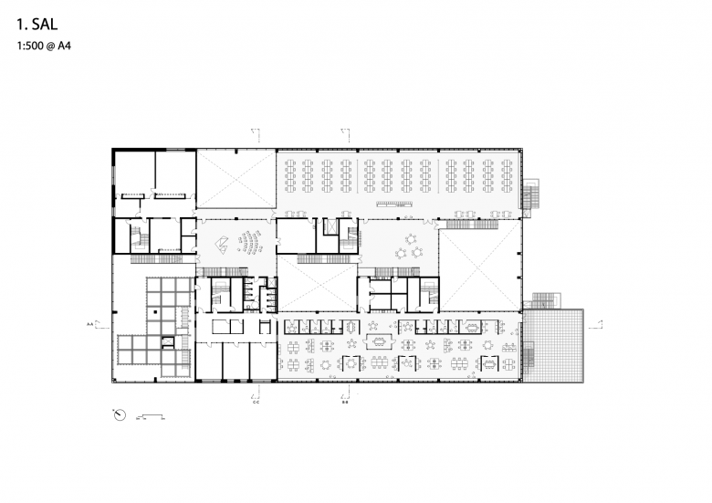
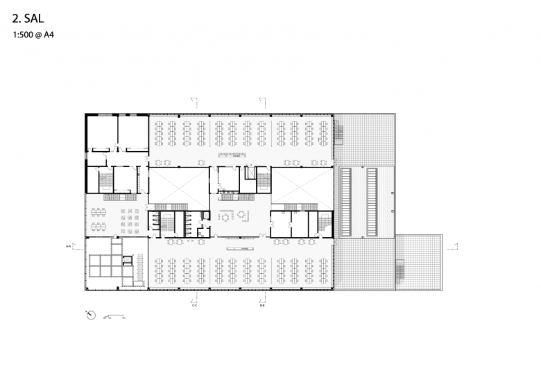
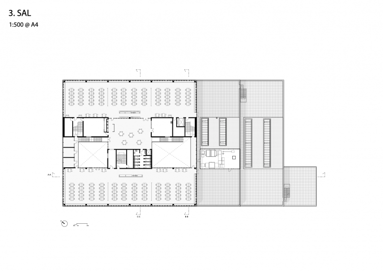
The Aarhus School of Architecture was designed as a laboratory for learning and exploring architecture, both inside and out. The building is located at a former railyard with traces of industrial history forming a raw authentic identity. Characterized by its exposed materials and MEPs, as well as its industrial details, the building design adapts to this unkempt environment, its closest neighbor being Institute for X – an alternative self-build community of startups and culture.
The intentional simplicity of the design is a detailed response to the school’s need for functional and robust spaces. The completed building allows the tutors to experiment with new and contemporary ways of architecture education, while at the same time providing a stronger spatial identity that matches the ambition of being one of the best architecture schools in Europe. The new building is the school’s best showcase allowing activities to become visible to the public, just as the spatial organization and interior transparency makes studio activities visible and present to all the students. From its former spaces hinting at individuality, this is architecture encouraging communities and synergies.
‘The new Aarhus School of Architecture brings together ten former locations into one building. The dream was a robust structure, a living laboratory of architecture. This has inspired the workshop-like design, that presents itself like an anti-icon – an empty canvas made for ideas, creativity and learning’, explains Martin Krogh, partner at ADEPT. He continues: ‘The design allows interior and exterior spaces to blend, not only through literal transparency, but also by questioning what is the school’s space and what is the city’s. This means that both the surrounding urban environment and the curricular activities will shape the building in the future. It is a building that was designed to never be enough in itself – only through its occupants is it complete’
The building was completed with design-integrated solutions and the intention of maximizing spatial flexibility. A narrow material palette reduces the building’s construction resources, including local production and transportation chains where possible. Settling on concrete as the optimal solution when responding to the need for large-scale and resilient spaces, the team behind the project worked closely with the manufacturer to lessen use of material in the construction as well as to maximize use of recycled material. Furthermore, the manufacturer was obliged to work with sustainable production encouraging zero-waste production.
Other sustainable initiatives are the upcycled wood floors made from leftovers from industrial window production and the large library structure spanning several floors. The library is partly made from an upcycled shelve system from a near-by historic building. The urban landscape surrounding the building is part of a research project aiming to upcycle leftover construction materials from building to landscape, testing climate adaption solutions and moving biotopes from one location to another. The school will reduce their energy consumption with up to 50 % compared to the sum of their former locations.
Designed through co-creation in an innovative partnering model, the new Aarhus School of Architecture shows an alternative direction for cross-disciplinary collaboration in the building industry. The design is based on extensive user and neighborhood involvement and basically eliminated internal hierarchies in the project organization to promote a transparent development process and a strong ownership at all levels of the partnership.
- Architects
- ADEPT
- Any
- 2021
- Estat del projecte
- Construït
- Client
- Danish Building and Property Agency / Aarhus School of Architecture
- Lead consultant
- ADEPT
- Engineer
- Tri-Consult
- Contractor
- A. Enggaard A/S
- Co-architects competition / concept design
- Vargo Nielsen Palle, Rolvung & Brøndsted Arkitekter
- Additional consultants
- Steensen Varming, Lendager Arktekter, Etos Ingeniører
- Landscape
- ADEPT
- Art
- Lea Porsager
- Library
- Praksis Arkitekter































