Stabilimento Balneare Ondina

Viale delle Nazioni 276, Marina di Ravenna (RA), Italy
Fotografia © Nuovostudio

Progetto e realizzazione di stabilimento balneare con Monica Poletti Interiors e Paisà Architettura del paesaggio

L’intervento riguarda la costruzione di uno stabilimento balneare denominato “Ondina” e sito a Marina di Raven-na (RA).

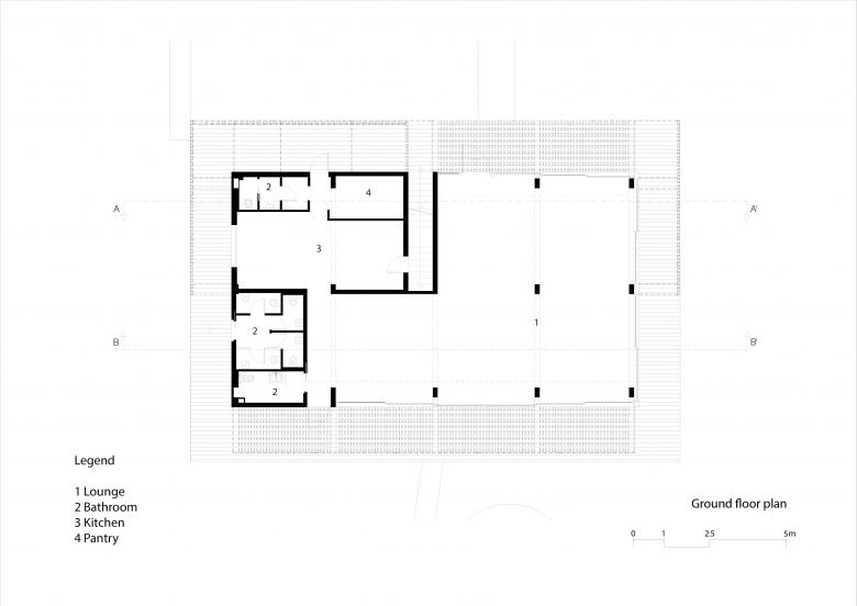
Dal punto di vista puramente compositivo il progetto si configura come un manufatto compatto di forma rego-lare, di un livello fuori terra, che accentra in un unico corpo centrale il futuro stabilimento balneare.
Il fabbricato consiste in pianta di un rettangolo di 11,50 x 20 m, al quale si aggiungono pergolati sul fronte mare e brise-soleil nella parte anteriore rivolta verso la pineta.

La permeabilità visiva è un fattore che ha fortemente influenzato il disegno dei prospetti del manufatto.
Il fronte, lungo 20 m, è caratterizzato da una vetrata ampia 5 m che mette in comunicazione visiva gli stradelli dal lato pineta, e il spiaggia antistante; l’edificio funge quindi da filtro visivo tra la pineta e il mare per alleggerire la percezione del manufatto in luogo fortemente naturale.
Il progetto è figlio di un linguaggio architettonico di matrice razionale, che rimanda alla leggerezza e trasparenza delle study-house californiane degli anni successivi alla guerra, con una sensibilità materiale locale accentuata dall’uso del legno, per gli elementi di schermatura orizzontali e verticali, e all’uso dei colori bianco e nero per integrarsi con il contesto ma senza passare inosservato. Inoltre, la presenza di un solarium sulla copertura con-sentirà ai fruitori un rapporto privilegiato con il panorama.

La componente vegetale gioca inoltre un ruolo attivo nella progettazione dell’edificio.
Nel fronte rivolto verso il lato della pineta è presente una parete verticale connotata dalla presenza di rampicanti, che da una parte schermano alla vista i locali di servizio alla cucina, dall’altra creano un luogo di sosta piacevole per l’utilizzo da parte dei clienti. Si prevede di mantenere le olivelle e betullenti esistenti limitrofe alla pineta, e di implementarne la loro presenza nei lati nord e sud con l’aggiunta di tamerici; l’obiettivo è quello di schermare la vista degli stabilimenti balneari limitrofi e creare un’oasi verde capace di mitigare l’impatto che la costruzione dell’edificio potrebbe creare.

Fotografia © Nuovostudio
Fotografia © Nuovostudio
Fotografia © Nuovostudio
Fotografia © Nuovostudio
Fotografia © Nuovostudio
Fotografia © Nuovostudio
Fotografia © Nuovostudio
Fotografia © Nuovostudio
Fotografia © Nuovostudio
Fotografia © Nuovostudio
Fotografia © Nuovostudio
Fotografia © Nuovostudio
Dibuix © Nuovostudio
Dibuix © Nuovostudio
Dibuix © Nuovostudio
Dibuix © Nuovostudio
Dibuix © Nuovostudio
Dibuix © Nuovostudio
Architects
NUOVOSTUDIO
Any
2022
Estat del projecte
Construït

Projectes relacionats 

  • Gymnasium Schulstraße
    Kronaus Mitterer Architekten
  • GROHE Water Experience Center
    D’art Design Gruppe GmbH
  • Limmatquai 4
    Kästli Storen
  • Volksschule Erlaaer Schleife
    Kronaus Mitterer Architekten
  • Ortsdurchfahrt Domat/Ems
    Luminum GmbH

Revista 

Altres projectes per NUOVOSTUDIO 

Giuseppe Zanotti Conduit St
London, Great Britain
Galleria Lercaro
Bologna, Italy
Casa MR
Ravenna, Italy
Concorso di idee per la nuova centralità di Casalgrande
Casalgrande (RE), Italy
Ampliamento Sede Tozzi Green
Mezzano (Ra), Italy