再造胡同剧场:PAGEONE办公室与艺文展场改造
三井胡同, 北京, China
北京城里的时间轴,记忆的延续与叠加_
北京的胡同如同历史的载体,各个时期的痕迹在此揉杂交错。 随着现代化发展, 胡同区域的功能也变得更加多元且多变。如同这个院落,曾经是住宅,在1998年被作为旅馆经营,在2014年的旧城更新中被改造成钢结构建筑,主要功能为小剧场,如今的新功能则为PAGEONE书店的办公室和艺文展示场所, 而这个功能也不会长久存在。
胡同里有着丰富的生活,生命力是饱满且相互包容的。面对“二次更新”的项目,以及考虑未来继续变化生长的可能性, 我们在保留主体结构的条件下采用“轻” “弹性”的态度和方式去植入设计,保留部分场所记忆,并延续城市与胡同的活力, 在有限的空间和时间内企图凝聚更多的层次与胡同体验。
在既有的空间构成框架下,我们通过重新定义空间内容与界面材料,借由新旧材料对话、空间尺度与光影明暗的把控,尝试在原有的胡同风景中创造独特的场所经验与空间感受。
从胡同街道至办公场所,剧场空间再诠释_
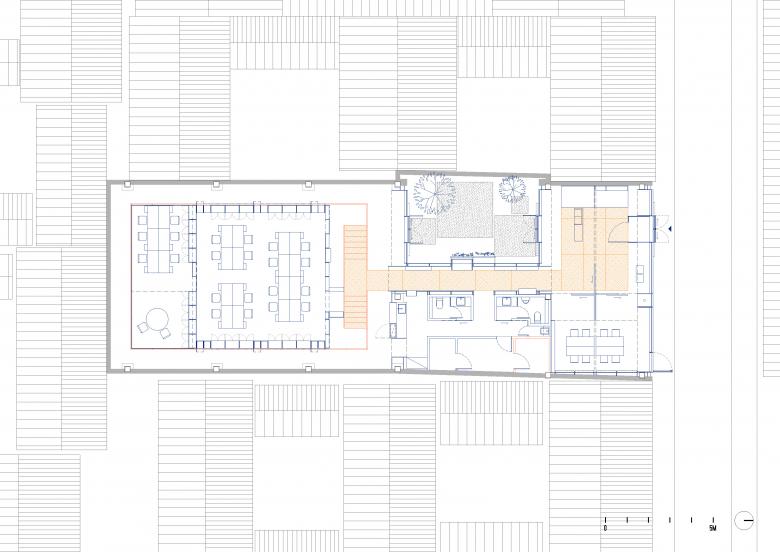
原先要作为小剧场使用的下沉空间、天光与庭院已是胡同里有趣的存在,透过适度的设计,让人从生动的胡同街道穿过层层光影与尺度渐变的空间,感受不同的情境,亦如穿梭剧场。
入口展间延续胡同街景是明快、舒畅的,接着是位于院子东侧的连廊,被改造为一条安静的黑色展廊,它与院子的对话被限定在其中向庭院伸出的一个个人的阅读空间。 展廊在空间路径上连接了入口展间与办公区两个不同属性的空间,用光转化使用者感受:由外部喧闹到逐渐沉静的过渡。
原有的下沉空间与天光被重新定义为办公场所,植入一层金属拉伸网界面悬浮于办公区域上方,除了界定办公空间、柔化来自天窗的直射光,也解决了办公照明和海报吊轨的需求,并微调空间尺度至舒适的办公环境。
办公空间四周的地面层环廊为供访客参观的环形展廊,保留了从入口地面延伸至办公区的压纹黑钢板,在走向办公区的过程中,钢板地面独有的触感,以及由竖立的黑钢板与新植入的金属冲孔板所营造的多层次办公空间,对于访客犹如步入舞台,无意间暗示了曾经的功能。单元化设计的办公柜体沿空间长向布置 ,除了提供办公区充足的收纳,向上生长后,不仅成为展廊的展示书架和访客的读写空间,也形成一道访客与办公人员视线观看的界面。
打开胡同,创造自由的空间_
入口和院子的南北两侧立面是联系胡同街道与整个空间的三道透明界面,透过界面视线可以将空间串联 —— 胡同、展间、庭院直至办公空间。空间既是彼此独立,也相互交叠。当打开三道立面上经对位设计的推拉门,将有一条直接路径使空间流动。
入口空间为展示与会议空间,除了办公需求外,在这里将定期发生展览活动,并和街道以及对面的社区图书馆互动。 我们在现有钢梁下植入新的系统,由胶合木板材(欧松板)与钢构件组成的十字型活动墙,可弹性划分空间。 借由墙体推移,空间东侧围合出的两个小会议室可相互合并为一个大会议室,亦可开敞成为西侧入口展间的延伸。
改造中所选用的材料为可快速施工组装的多层板和欧松板,以及在胡同区域“私搭乱建”中经常会出现的镀锌钢板、金属网和阳光板, 我们试着用经济的方式将这些胡同里的日常材料重新在合适的场所空间内展现材料可显现的氛围与质感。
胡同纹理是复杂甚至破碎的,如同当今现代城市的发展进程,之于大环境的变动,我们的设计也是瞬息万变的一部分,因此,从设计、施工至使用,生成的过程与创造的场所都是我们企图打造的自由空间,让人们在快速的城市发展中,拥有机会累积自己的场所记忆,进而集结为城市的胡同记忆。
- Architects
- 即作建筑
- Any
- 2018
- Estat del projecte
- Construït
- Client
- PAGEONE bookstore






















