Pflegewohngruppen am Bächli
Am Bächli, Udligenswil, Switzerland
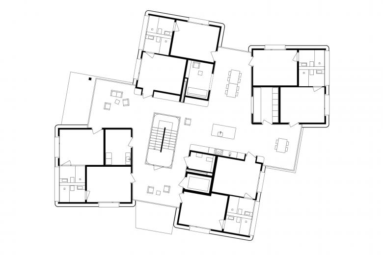
Vier dreigeschossige, holzverschindelte Wohntürme mit einzeln aufgesetztem Satteldach sind mit einem transparenten Flachdachbau verbunden. Das so feingliedrig aufgelöste, stattliche Volumen fügt sich massstäblich in die benachbarte, dörfliche Bebauung ein. In den vier «Wohntürmen» des ersten und zweiten Obergeschosses sind je acht gut proportionierte, grosszügige Einbettzimmer übersichtlich angeordnet. Zwischen den Kuben der Zimmereinheiten ist der Gemeinschaftsbereich angelegt.
- Architects
- MSA Meletta Strebel Architekten AG
- Any
- 2017
- Estat del projecte
- Construït
- Client
- Gemeinde Udligenswil











