Pflegezentrum St. Anna

Rüppurrer Straße 29, Karlsruhe, Germany
Fotografia © Stephan Baumann

n zentraler Stadtlage, entlang eines innerstädtischen Grünzuges gelegen, stellt sich das Pflegezentrum den architektonisch-funktionalen Aspekten der Pflege alter und dementer Menschen. Darüber hinaus dokumentiert das Projekt die Haltung der Architekten zur städtebaulichen Einbindung, der Nachhaltigkeit und dem architektonischen Ausdruck dieser wichtigen Bauaufgabe.

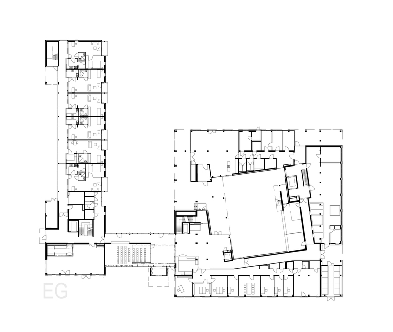
Das Pflegezentrum besteht aus 3 Bauteilen:

Kubus:
Pflegebereich um einen Innenhof gruppiert, mit 120 Pflegeplätzen
12 Betreute Wohnungen auf dem Dachgarten im 5. OG
Tagespflege im EG

Langbau (Luisenstr):
Betreutes Wohnen mit 33 Wohneinheiten

Verbindungsbau:
Foyer, Kapelle, Besprechungszimmer

Der Bauherr hat sich zur Aufgabe gemacht in diesem Gebäude die Pflege dementer Menschen modellhaft zu betreiben.

Form und Funktion – Wesentlicher Aspekt für den Entwurf war es, den Anforderungen alter oder demenzerkrankter Menschen in der Architektur Ausdruck zu verleihen. So entstand die grundsätzliche Gebäudekomposition mit der Trennung von betreutem Wohnen und Pflege, die über einen Verbindungsbau (Eingang, Foyer Kapelle) so miteinander verbunden sind, dass auch kurzzeitige Pflege im betreuten Wohnen möglich ist, der Betroffene also im Pflegefall nicht ausziehen muss.

Der Pflegebereich ist durch seinen Innenhof und seine einhüftige Erschließung so gestaltet, dass er dem Bedürfnis nach viel Tageslicht und dem Bewegungsdrang vieler dementer Menschen gerecht wird (Rundlauf). Die Drehung des Innenhofs gegenüber dem Flur ermöglicht große Fluraufweitungen, die eine Gruppenbildung und Flexibilität in der Umsetzung neuer therapeutischen Erkenntnisse in der Dementenpflege zulässt.

Die freie Bewegungsmöglichkeit des Menschen, auch des graduell Verwirrten, ist optimiert, er kann selbstständig über die Innenhoftreppe oder den Aufzug in den Innenhof und den Garten, ohne das Gebäude unkontrolliert verlassen zu können (Sicherheitsaspekt). Er fühlt sich an keiner Stelle eingesperrt.

Gestalt – Wesentliches Kriterium für die Gestalt ist die kubische, klare Architektur, die außen mit einem vielfarbigen Sichtmauerwerk versehen, wie eine edel gealterte Haut wirkt. Diese verleiht dem Gebäude eine zeitlose Würde und ehrt damit auch den darin lebenden alten Menschen.

Der Innhof ist mit seiner Holzvertäfelung so etwas wie die gute Stube des Hauses, Mittelpunkt der dort lebenden, arbeitenden und besuchenden Menschen. Das Wasser, das die Granitwand kontinuierlich herunter läuft soll sowohl Leben aber auch die Kontinuität der verrinnenden Zeit auf besonders freundliche Weise dokumentieren.

Materialität und Farbigkeit – Wir wollten kein buntes Gebäude schaffen, sondern ein würdiges, das seine Buntheit aus der Farbigkeit des Materials selbst, wie Stein, Beton und Holz, erhält. Durch die besondere Anordnung der Sanitärzellen sind durchbindende Zimmer möglich geworden, die hell und freundlich sind und durch die besondere Ausbildung des Fensters auch einen guten Außenkontakt gewährleisten.

Bauherr
Orden der Barmherzigen Schwestern vom heiligen Vinzenz von Paul, Freiburg

Fotografia © Stephan Baumann
Fotografia © Stephan Baumann
Fotografia © Stephan Baumann
Fotografia © Stephan Baumann
Fotografia © Stephan Baumann
Architects
PIA Architekten
Any
2002
Estat del projecte
Construït

Projectes relacionats 

  • Moos
    playze
  • Reiters Reserve Premium Suiten
    BEHF Architects
  • Erweiterung und Instandsetzung Hallenbad Altstetten
    MIYO Visualisierung
  • Neubau von fünf Einfamilienhäusern
    Bäumlin+John AG
  • The Forge in der 105 Sumner Street in London
    Kiefer Klimatechnik GmbH

Revista 

Altres projectes per PIA Architekten 

Kinderhaus Seckenheim Süd
Mannheim, Germany
Kinderhaus Wirbelwind
Karlsruhe, Germany
Gemeindezentrum Sinzheim
Sinzheim, Germany
Betreutes Wohnen Stutensee
Stutensee, Germany
Gemeinde- und Fachaltenzentrum Hagsfeld
Karlsruhe, Germany