PLOTS 2251, 1314

Beirut, Lebanon

Developing a residential project on Plot # 2251 could have seemed audacious at the time due to its proximity to the former demarcation line which remains a zone in relative convalescence, but also due to the fact that one of the plot’s orientations has direct exposure to the cemetery, which proves problematic for a relatively superstitious culture.

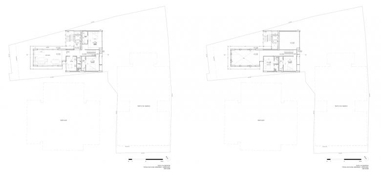
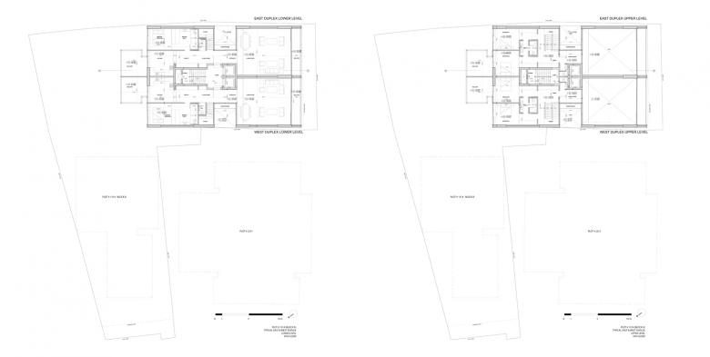
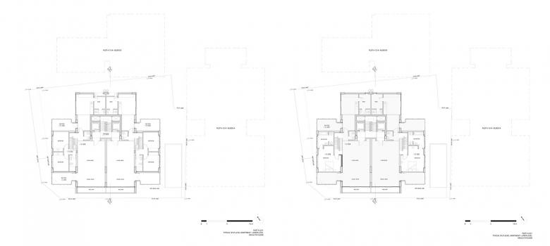
With a total built-up area of approximately 3,300 square meters, Plot # 2251 was designed without the knowledge that we would also become responsible for the neighbouring Plot # 1314 only a few months later; a complementary scheme comprising Block A and B of 4,400 and 2,800 square meters of total built-up area respectively. The assemblage of these three buildings has in fact become an exercise in dealing with a severe density imposed by zoning laws, but also proof that three non-adjoined buildings can in fact form a coherent whole, while simultaneously creating interesting residues.

Located in a predominantly low-rise context, Plots # 2251 and 1314’s surrounding buildings include the Maronite Cemetery, the Beirut Hippodrome and various institutional buildings. This geographic location, along with the setbacks imposed due to the aforementioned projects defining their periphery, has afforded all three buildings diverse view corridors informing their design. For instance, each of the three blocks has an entity at its peak which detaches from its body, conceived as oversized frames mainly to benefit from these vistas and open views. The peaks of Plot # 2251 and Plot # 1314’s Block A point south with views toward the former demarcation line, while the peak of Plot # 1314’s Block B points west in the orientation of the Maronite Cemetery.

In Plot # 2251 and 1314’s Block B, split level sections allow for relatively high ceilings of approximately 4.5 meters in the reception areas, as well as interlocking bedrooms in section. With a direct view onto the cemetery, Plot # 1314’s Block B houses reception spaces completely glazed on all three exposed orientations, with alternative outdoor access from the reception balconies that define its entire perimeter. Lastly, all three blocks accommodate pool terraces on their roofs, lodged at altitudes greatly exceeding the average heights of the neighbourhood’s surrounding buildings.

Architects
Bernard Khoury / DW5
Any
2013
Estat del projecte
Construït

Projectes relacionats 

  • Moos
    playze
  • Reiters Reserve Premium Suiten
    BEHF Architects
  • Erweiterung und Instandsetzung Hallenbad Altstetten
    MIYO Visualisierung
  • Neubau von fünf Einfamilienhäusern
    Bäumlin+John AG
  • The Forge in der 105 Sumner Street in London
    Kiefer Klimatechnik GmbH

Revista 

Altres projectes per Bernard Khoury / DW5 

Babyn Yar Memorial
Kiev, Ukraine
Pristina X
Pristina, Kosovo
4146 Lankershim Boulevard
Los Angeles, USA
Tumo Center fo Creative Technologies (MASIS)
Masis, Armenia
PLOT 4371
Beirut, Lebanon