Privatvilla
Cecina/Gardasee, Italy
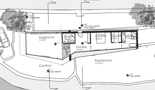
Eine Privatvilla als Teil der Terrassenlandschaft am Gardasee. Die extrem engen Abstandsflächen erlauben nur eine Gebäudetiefe von 4 - max. 6 m. Der Entwurf bewahrt den Nachbargebäuden einen optimalen Seeblick. Umfang: ca. 250m2
Kunde
privat
Leistung
Architekturplanung, Lph1-4
Bearbeitungszeitraum
2009-2010
Projektbeteiligte
Bruno Franchi mit Achim Dannenberg
Mitarbeit: Stefan Horn












