Projektwettbewerb Hochhaus Areal Saurer WerkZwei
Das neue Hochhaus bildet den vorläufigen Schlusspunkt der geplanten Stadtkante von Arbon. Die Setzung der Hochhausscheibe im hinteren Drittel der Parzelle hat aber gleichermassen auch eine weiterleitende Wirkung, indem die drei Freiräume ‚Park Steinach’, das leicht erhöhte ‚Belvedere’ vor dem Hochhaus und der Stickereiplatz räumlich grosszügig zusammengefasst werden. Damit werden Arbon und Steinach städtebaulich miteinander verbunden.
Zur Stickereistrasse ist der Baukörper ebenfalls zurückgesetzt und schafft an deren Ende eine Ausweitung des Strassenraumes. Damit wird der Kreisel räumlich aufgewertet und die Stickereistrasse findet in einem baumbestandenen Platz ihren Abschluss. Die beiden doppelgeschossigen Eingangslobbies bilden hier eine klare Adresse sowohl für die Wohnungen als auch die Büros.
Sockelbau und Scheibe orientieren sich in ihrer Ausdehnung an der vorgefundenen morphologischen Struktur der grossmasstäblichen Hallenbauten des Saurer-Areals.
Mit einer Höhe von unter 60 Metern passt sich das Hochhaus gut in den übergeordneten Landschaftsraum ein.
Die Wohnscheibe sitzt auf dem eingeschossigen Sockelbau, der zum See und zum Verbindungsweg zwischen Arbon und Steinach flach abfällt. Über geschwungene Treppen und einen leicht ansteigenden Weg erreicht man das ‚Belvedere’, von wo sich bereits eine schöne Seesicht erleben lässt. An diesem durch seine erhöhte Lage ausgezeichneten Ort sind eine Bar und zwei Clubräume für die Bewohner vorgesehen. Gleichzeitig befinden sich hier auch die oberen Ausgänge aus den doppelgeschossigen Eingangslobbies.
Die vorgeschlagene Scheibe reagiert auf verschiedenen Ebenen präzise auf die vorgefundene Situation. Richtung Arbon und Steinach erscheint sie als schmaler eleganter Baukörper, zur Weite des Sees hin zeigt sie ihre breite Seite. Die Fassade mit unterschiedlich weissen, opaken und durchsichtigen Gläsern spiegelt die umgebende Landschaft und die Benachbarten Gebäude, den See und die Wolken. Das elegante Spiel von Transparenz und Tiefe bricht dabei die Dimension des Baukörpers.
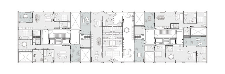
Die Atmosphäre der Wohnungen wird durch ein gemeinsames räumliches Thema bestimmt. Ausgehend von der Überlegung, dass sowohl aussenliegende Terrassen und Balkone wie auch eingezogene offene Loggien in einem Hochhaus wegen der erhöhten Windbelastung selten genutzt werden können, sind grosszügige, doppelgeschossige Wintergärten vorgesehen. Diese bilden den Auftakt beim Betreten der jeweiligen Wohnung. Die überaus helle Lichtsituation steht in starkem Kontrast zu den geschlossenenen Erschliessungskernen und nach der Liftfahrt sind sie eine nachhallende Überraschung. Direkt angrenzend folgt der zentrale Wohnraum, bei den mittleren Wohnungen durchgehend zweiseitig ausgerichtet, bei den Endwohnungen nach West resp. nach Ost orientiert. Die platzsparende Organisation erlaubt den weitgehenden Verzicht auf Korridore und die so gewonnenen Fläche kommt dem Wohnraum zugute, der mit einer Grösse zwischen 40 und 50 m2 den Wohnungen einen Loft-Charakter verleiht.
Die Büros sind auf einer einzigen, durchgehenden Ebene im Erdgeschoss organisiert und bieten schöne Blickbezüge auf den Stickereiplatz im Norden, den Steinacher Park im Süden und das dem See vorgelagerte Naturschutzgebiet im Osten. Zusätzlich sorgen grosse, runde und raumhoch verglaste Innenhöfe für eine gute Belichtung der Büroflächen. Verschiedenartige Pflanzen und Bäume in den auch dem Aufenthalt dienenden Höfen erzeugen eine angenehme Arbeitsatmosphäre. Die Unterteilung der Gesamtfläche ist dabei in hohem Mass flexibel und kann sowohl verschiedene Mieter als auch eine einzige Firma aufnehmen.
- Architects
- Schneider Studer Primas
- Any
- 2013
- Estat del projecte
- Disseny
- Client
- HRS Real Estate AG
- Equip
- Jens Studer, Franziska Schneider, Urs Primas, Lukasz Pawlicki, Amadeo Linke
- Landschaftsarchitektur
- Berchtold.Lenzin Zürich GmbH
- Bauingenieure
- Schnetzer Puskas Ingenieure AG
- Haustechnik
- Waldhauser + Hermann AG
- Lärm
- Ernst Basler & Partner AG
Projectes relacionats
Revista
-
-
Bâtiment de la semaine
The Three-Body Problem: Trapped in a Wave Sandwich
Eduard Kögel, Scenic Architecture Office | 13.04.2026 -













