Wasserschloss Quilow
Quilow 45/46, Groß Polzin, Germany
Am Rande des Naturparks Flusslandschaft Peenetal, unweit der Hansestadt Anklam, liegt malerisch zwischen Dorfteich und Waldrand eingebettet das Wasserschloss in Quilow.
Ab 1575 erbaut, gilt das Bauwerk mit seinen markanten Schmuckgiebeln als eines der wenigen noch erhaltenen Herrenhäuser der Renaissance in Vorpommern, stand seit den 1990er Jahren jedoch leer und war dem Verfall preisgegeben, bis es im Herbst 2020 nach dreijähriger Renovierungsphase wieder eröffnet werden konnte und heute als Museum, Restaurant und Veranstaltungsort genutzt wird.
Die durch den Förderverein der Stiftung Kulturerbe im ländlichen Raum Mecklenburg-Vorpommern initiierte Revitalisierung des Schlosses verfolgte dabei gleich mehrere anspruchsvolle Ziele: die behutsame und nachhaltige Instandsetzung des Gebäudes unter denkmalpflegerischen Gesichtspunkten, die Hebung ungenutzten touristischen Potenzials um mehr Besucher ins Hinterland der Insel Usedom zu locken sowie die Wiederherstellung eines verloren gegangenen Gemeinschaftsortes mit kulturellem und gastronomischem Angebot für die Bewohner des Dorfes und der umliegenden Gemeinden.
Die nach gemeinsamer Planung der Büros Dienstleistung Denkmal (Alt Kentzlin) und D/FORM (Berlin) umgesetzte Baumaßnahme wurde nun bei der Verleihung des Bundespreises für Handwerk in der Denkmalpflege am 3. November 2022 mit dem 1. Preis gewürdigt und das gelungene Zusammenwirken von Planungsteam und Handwerksbetrieben ausgezeichnet.
Das denkmalpflegerische Konzept sah für die Instandsetzung neben dem größtmöglichen Erhalt der Substanz auch eine weitgehend gleichberechtigte Behandlung aller Bauzeiten vor, ohne eine bestimmte Epoche rekonstruieren zu wollen. Im Resultat lassen sich in Innenräumen an Wänden und Decken viele Zeitschichten der wechselvollen Historie des Hauses ablesen, so sind etwa die bauzeitliche Schwarze Küche und der nebenliegende Saal durch eine vorgefundene Wandöffnung verbunden, die als Projektorfenster des im 20. Jahrhundert zeitweise eingerichteten Kino-Saals diente.
Manche Ergänzungen der jüngeren Vergangenheit mussten allerdings zwangsläufig weiterverwendet werden, denn zuletzt war die Standsicherheit nur durch ein Korsett aus Stahlträgern und Zugstangen gewährleistet, das stellenweise zwar entfernt werden konnte, im Veranstaltungssaal aber in Form von neuen konstruktiven Bauteilen neben dem alten Dachstuhl sichtbar verblieb.
Die teilweise noch mit Stuck aus der Erbauungszeit ausgestattete Fassade wurde unter weitestgehendem Erhalt historischer Putzschichten restauratorisch überarbeitet. An den seitlichen Giebeln, eine Rekonstruktion aus den 1960er Jahren, wurde DDR-typischer Kratzputz mit gleicher Sorgfalt ergänzt wie noch erhaltene Oberflächen des 17. Jahrhunderts, auf denen sich eine falunrote Farbschicht nachweisen lies, Zeugnis der schwedischen Vergangenheit der Region. Darüber hinaus konnten alle bestehenden Holzfenster, ein Sammelsurium aus vierhundert Jahren Baugeschichte, ertüchtigt sowie vorhandene Biberschwanzziegel geborgen und für die neue Dacheindeckung wieder verwendet werden.
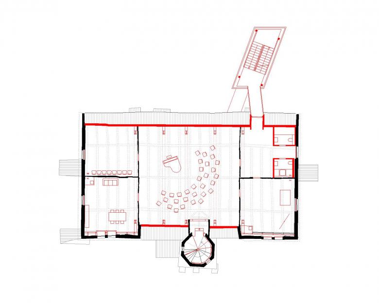
Deutlichster Eingriff jedoch ist die Errichtung eines externen Treppenturmes, der sich markant hinter dem Bauwerk erhebt, als wolle er einen stabilisierenden Anker für den sich nach vorn neigenden, historischen Schlossturm bilden. Die mit karbonisiertem Holz verkleidete Stahlkonstruktion schließt als sichtbar zeitgenössisches Element an das Schloss an und stellt mit seiner rauen, rußigen Oberfläche ein eher dem angrenzenden Wald zugewandtes Pendant zur strahlend weißen Putzfassade dar.
Auch das Einrichtungsmobiliar nimmt als moderne Addition Bezug auf die Historie des Gebäudes, so etwa spielt die derzeitige Ausstellungsmöblierung aus türkis lackierten Baustützen und Containern ironisch auf den prekären Zustand des Zerfalls an, den das Wasserschloss Quilow überwinden konnte um sich wieder als glanzvollen Mittelpunkt des Dorfes zu präsentieren.
- Any
- 2020
- Estat del projecte
- Construït
- Client
- Förderverein der Stiftung Kulturerbe im ländlichen Raum Mecklenburg




















