Reconstruction and conservation of historial buildings in Jieshou Village
Jieshou Village, Songyang County, China
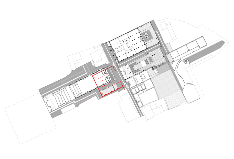
Starting from the reconstruction of Village-Hall as catalyst, the design kick-off a series of projects restoring and reactivating public buildings and open spaces along the historical street in Jieshou, Songyang, including Plaza of Village-Hall, Relic-site of Water-God Temple, Village Family Shrine, and Village School. While the new Village-Hall opens up an urban cross-section connecting the historical temple to the waterfront, the renovation of signature Courtyard Houses including Zhuo-Lu, Juyi-Tang and Minggaoshao-Fu, also opens up private courtyards to public streets and patios, linking village spaces into fabric, extending them to the surrounding nature of mountain and fields. Connecting points by points into lines and networks, the rural strategy of acupuncture by Wang Weijen Architecture intends to bring together architecture with community and social spaces, integrating production and culture tourism with village daily-life.
- Architects
- Wang Weijen Architecture
- Any
- 2017
- Estat del projecte
- Construït
- Client
- Chishou Country Government of Songyang County, 松阳县赤寿乡政府












