Umbau Head Office AQ Investment

Poststrasse 3, Zürich, Switzerland
AQ Investment AG
Video © Gataric Fotografie
Empfangsbereich von der AQ Investment AG
Fotografia © Studio Gataric Fotografie

Mit Blick auf das Zentralhof Monument

RAUMTAKT hat neben der ehemaligen Fraumünsterpost bei der Zürcher Bahnhofstrasse ein neues Umbau-Projekt abgeschlossen: Für die weltweit operierende Aquila Capital aus Hamburg durften wir an der Poststrasse 3 in der Zürcher Innenstadt einen Office-Umbau in Angriff nehmen. Das Besondere an dem Umbau ist, dass er komplett nachhaltig umgesetzt wird. Dabei werden verschiedenste Materialien «re-used» und wir arbeiteten ausschliesslich mit Schweizer Produkten, so etwa beim Eichenparkett, aber auch bei den Sanitär-Armaturen und Möbel. Dieser Approach entspricht auch der Philosophie der Aquila Capital, die eben nur alternative Investments tätigt und sich für einen nachhaltigen Planeten einsetzt.

Blick in den Arbeitsraum
Fotografia © Studio Gataric Fotografie
Vitra, XAL und Sabag Eichen Floor
Fotografia © Studio Gataric Fotografie
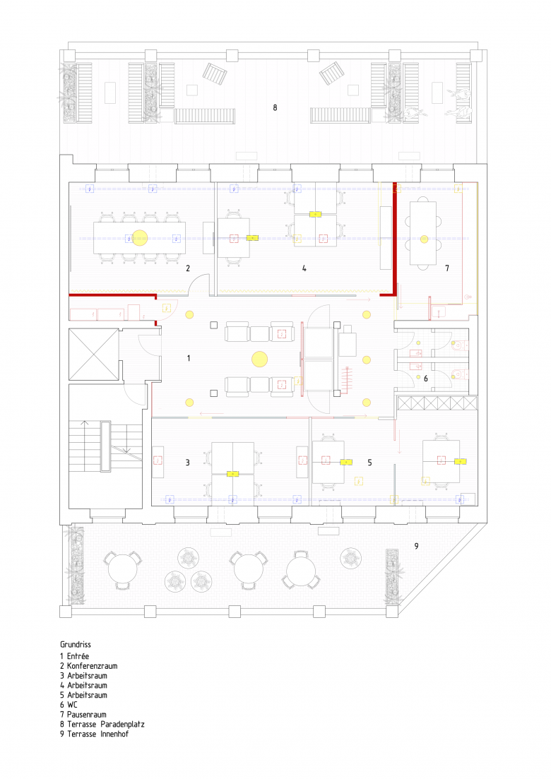
Übersichtsplan
Dibuix © RAUMTAKT GmbH
Empfangsbereich
Fotografia © Studio Gataric Fotografie
Vitra Soft Work
Fotografia © Studio Gataric Fotografie
Blick zur Telefonkabine
Fotografia © Studio Gataric Fotografie
Konferenzraum
Fotografia © Studio Gataric Fotografie
Konferenzraum
Fotografia © Studio Gataric Fotografie
Arbeitsbereich
Fotografia © Studio Gataric Fotografie
Officeküche
Fotografia © Studio Gataric Fotografie
Reform Küchenhersteller
Fotografia © Studio Gataric Fotografie
Blick in die Küche
Fotografia © Studio Gataric Fotografie
Telefonkabine
Fotografia © Studio Gataric Fotografie
Terrasse mit Blick auf den Paradenplatz
Fotografia © Studio Gataric Fotografie
Terrasse mit Blick auf den Paradenplatz
Fotografia © Studio Gataric Fotografie
Terrasse mit Blick auf das Zentralhof Monument
Fotografia © Studio Gataric Fotografie
Terrasse von der Postrasse
Fotografia © Studio Gataric Fotografie
Interior Designers
RAUMTAKT
Any
2021
Estat del projecte
Construït
Client
AQ Investment AG, Aquila Capital
Equip
Stefan Müller, Daniel Calvo
Elektro - Telematik - ICT
Reich + Nievergelt AG
Küchenlieferant
Reform cph | Copenhagen
Sanitär
Leutenegger Installations AG
Bodenbeläge & Parkett
Spiller AG

Projectes relacionats 

  • Passerelle Raststätte Werdenberg
    WALTER BIELER AG
  • Moos
    playze
  • Reiters Reserve Premium Suiten
    BEHF Architects
  • Erweiterung und Instandsetzung Hallenbad Altstetten
    MIYO Visualisierung
  • Neubau von fünf Einfamilienhäusern
    Bäumlin+John AG

Revista 

Altres projectes per RAUMTAKT 

Umbau und Erweiterung eines Familienhauses
Küsnacht, Switzerland
Umbau und Umnutzung Head Office Monami
Zürich, Switzerland
Umbau eines Familienhauses
Zürich, Switzerland
Umbau Head Office South Pole
Zürich, Switzerland
Umbau und Erweiterung ein Mehrfamilienhaus in Zürich
Zurich