Wohnscheune Plänitz
Neustadt-Dosse, Germany
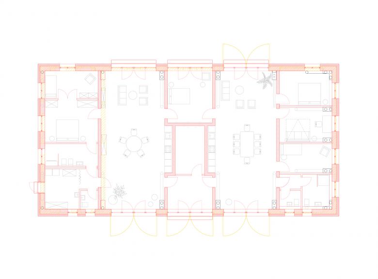
Der Umbau einer bestehenden Scheune zu zwei Ferienwohnungen hat vor allem das Ziel, den Wohnraum durch die alten Scheunentore hindurch in die umliegende Landschaft hinein zu öffnen. Dazu werden im Inneren alle Funktions- und Schlafräume als kompakte Streifen organisiert, zwischen denen sich die Wohn-Essbereiche öffnen. Der mittlere Schlafraum kann nach Bedarf der einen oder anderen Wohnung zu geschlagen werden. Die Kubatur der Scheune bleibt dabei unverändert und auch der ortstypische Klinker der Fassade kommt wieder zum Einsatz.
- Architects
- MTTR Architekten + Stadtplaner
- Any
- 2020
- Estat del projecte
- En construcció
- Equip
- André Schmidt, Joris Fach, Franziska Glöckler










