Wohngruppe ‘Gemeinsam Suffizient Leben’
Frankfurt am Main, Germany
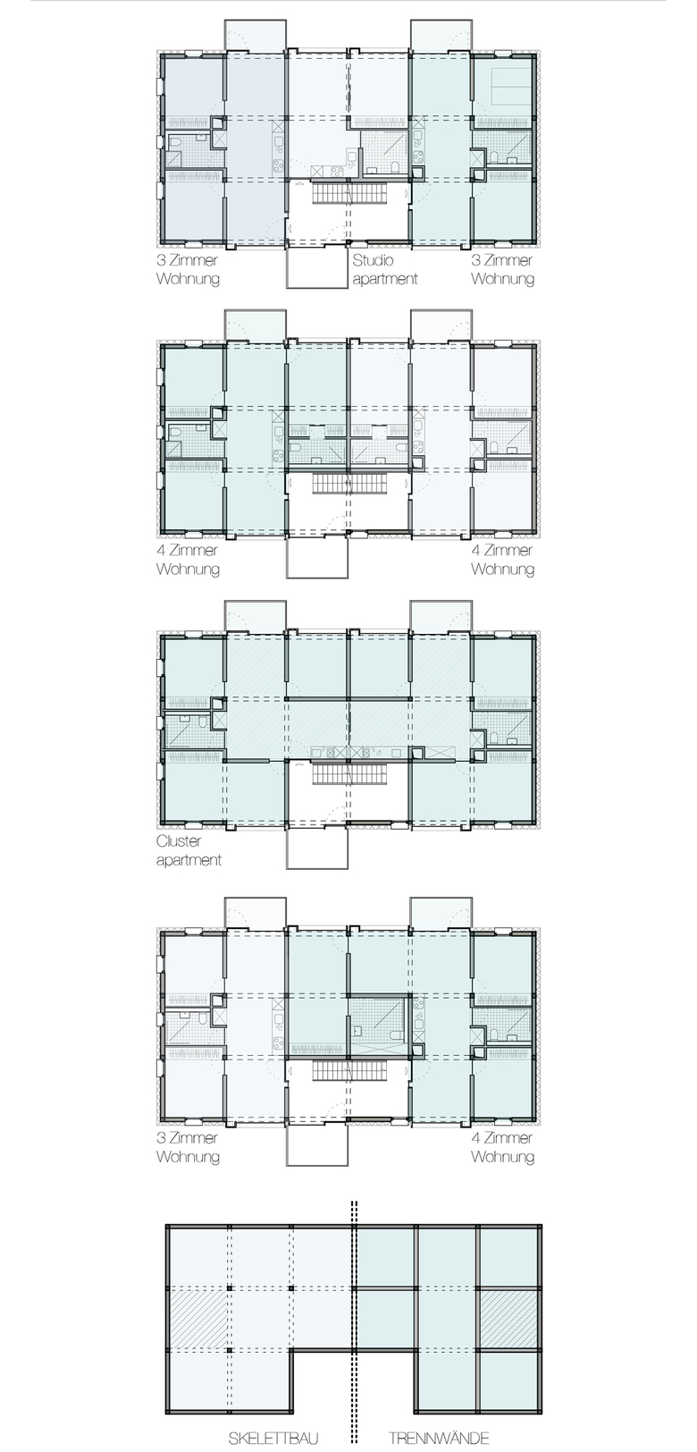
Das Konzept Räumlichkeiten in einem gemeinschaftlichen Wohnprojekt zu teilen, verringert die Wohnfläche pro Person, ohne dabei die Wohnqualität zu reduzieren. Dadurch werden Bau- und Betriebskosten sowie der Landverbrauch gesenkt, um kostengünstigen und bedarfsgerechten Wohnraum zu schaffen. Dies reduziert wiederum den Ressourcen- und Materialverbrauch in der Herstellung sowie die Kosten und die Umweltbelastung durch den Betrieb des Gebäudes.
Darüber hinaus wird durch großzügige Fensteröffnungen, Einbaumöbel, ausreichende Stauräume im Keller und die Reduktion der Verkehrsflächen eine hohe Lebensqualität in den Wohnungen gewährleistet. Die Nutzung von geeigneten gemeinschaftlichen Räumen macht das Vorhalten von Raumreserven in den Wohnungen unnötig.
Wir möchten einen Ort der Begegnung schaffen, der ein soziales Zusammenleben für die BewohnerInnen ermöglicht. Individuelle Entfaltungsmöglichkeiten und die Förderung einer gemeinschaftlichen Lebensform ergänzen sich harmonisch. Dieser Ansatz spiegelt sich im architektonischen Entwurf: Es gibt gemeinschaftlich genutzte Flächen im Gebäude (Wohnküche, Balkone auf jedem Stockwerk). Außerdem wird eine Kinderbetreuung im Erdgeschoss eingerichtet, welche sich als Angebot an das ganze Stadtviertel richtet. Ein Stützpunkt für Car-Sharing und E-Mobilität mit bis zu fünf Fahrzeugen ist für die ganze Nachbarschaft wertvoll.
Partner
Wohnbaugenossenschaft in Frankfurt WBG (Bauherr)
Baugruppe Gemeinsam Suffizient Leben (Partner)
Pirmin Jung Ingenieure (Partner)
Konzeptverfahren, 1. Rang
Planung u. Fertigstellung
2016 – 2021 (erwartet)
BGF
1.080 m2
- Architects
- DGJ Architektur
- Any
- 2017
- Estat del projecte
- Construït
Projectes relacionats
Revista
-
-
Bâtiment de la semaine
The Three-Body Problem: Trapped in a Wave Sandwich
Eduard Kögel, Scenic Architecture Office | 13.04.2026 -


















