Blocksanierung mit Hofentkernung, partieller Verdichtung - Neubaugürtel, Goldschlagstraße
Neubaugürtel 13-17 / Goldschlagstraße 2-4 / Löhrgasse 14-18 Stiege 1-4, Wien, Austria
Ein Block lebt auf
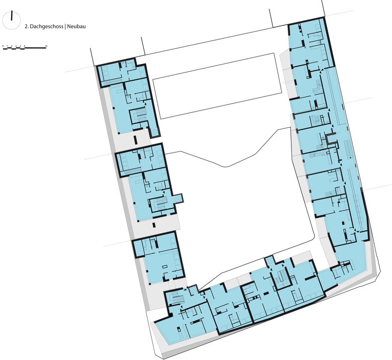
Block- und Sockelsanierung sind zwei klassische Instrumentarien der „sanften Stadterneuerung“ in Wien, mit denen gründerzeitliche Bausubstanz über Liegenschaftsgrenzen hinweg partiell verdichtet und entkernt werden kann. Ein gründerzeitlicher Block der Bauzeit um 1900 an der Kreuzung Neubaugürtel im Osten und der sonnigen, ruhigen Goldschlagstraße im Süden wurde von den Architekten P.GOOD (Martin Praschl und Azita Goodarzi) nun vorbildlich saniert und erneuert. Die besondere Herausforderung für die Architekten bestand darin, durch gezielte Maßnahmen an diesem rauen, lauten, verkehrsumtosten Stück Stadt eine durchgehend hohe Wohnqualität für alle Bewohner zu erzielen. P. GOOD entkernten den Hof, der von parasitären Bauten mit temporärer Bordell-Nutzung zugepflastert war, ersetzten einen desolaten Altbau durch ein Neubau-Implantat und doppelten eine bestehende Feuermauer mit einem schmalen Altbautrakt um einen weiteren Neubau auf. Dieser Bauteil besticht nun in jeder Wohnung mit der faszinierenden Dualität von Altbau-Raumhöhe und der Helligkeit und dem privaten Freiraum des Neubaus. Alle übrigen Gründerzeit-Häuser wurden saniert, teils Wohnungen zusammengelegt und das Dachgeschoss mit zwei Geschossen ausgebaut. Im Sockel konnte gewerbliche Nutzung mit Geschäften und Büros erhalten werden, der gründerzeitliche Bestand wurde hofseitig teils um tiefe, gut nutzbare Loggien und Mietergärten erweitert. Eine Verkleidung aus transluzentem Metall vermehrt die Helligkeit im Hof und sorgt für ein ruhiges Erscheinungsbild. Schallschutzfenster im Bestand und eine lichte, großzügige Laubengangerschließung im neuen Bauteil am Gürtel schützen die Wohnungen vor Lärm, raumhohe Verglasungen, Terrassen und Loggien im ausgebauten Dachgeschoss schaffen hohen Wohnkomfort. Hier lässt sich von den Terrassen aus die Großzügigkeit des Gürtels als weiter, urbaner Freiraum gut erleben. Der charmante, extrem schmale, lange mittlere Innenhof blieb erhalten, unter dem ersten Hof konnte man eine Tiefgarage mit 26 Stellplätzen schaffen. Das expressiv geformte, schillernde Schuppendach fasst den Block in der Dachzone zusammen, im Erdgeschoss tun es die Geschäfte. Insgesamt wurde sowohl die Qualität der Wohnungen, als auch des Umfelds mit dieser Maßnahme deutlich verbessert.
- Architects
- P.GOOD Praschl-Goodarzi Architekten ZT GmbH
- Any
- 2019
- Estat del projecte
- Construït
- Client
- Premium Bauträger GmbH
- Equip
- Arch DI. Azita Praschl-Goodarzi, Arch DI Martin Praschl, Arch DI Waltraud Derntl - Projektleitung, DI Niel Mazhar - Projektleitung
- Ausführungsplanung - Örtliche Bauaufsicht
- Baumeister Lindner, Planungs- u. Bauges.m.b.H
- Baumeister
- Lieb Bau Weiz GmbH & Co KG
- Statik
- Ingenieurgemeinschaft Hollinsky & Rusnov & Spreitzer Zivilitechniker GmbH
- Bauphysik
- bauphysik.at - Ingenieurbüro für Bauphysik, 2511 Pfaffstätten
Projectes relacionats
Revista
-
-
Bâtiment de la semaine
The Three-Body Problem: Trapped in a Wave Sandwich
Eduard Kögel, Scenic Architecture Office | 13.04.2026 -




















