Rooftop pavillon at "Grande Hotel do Porto"
Porto, Portugal
The Black Tower - Rooftop pavillon at "Grande Hotel do Porto"
The hotel “Grande Hotel do Porto” is located at the centre of Porto, Portugal, and it opened in 1880. In 1916 it underwent its first major enlargement, when the rooftop was adapted for use during the summertime. Throughout the years, it lost its recreational purpose and became useless.
The creation of a small building, which will support the activities intended for this space, is the attempt to return it to its former function of recreation and gathering.
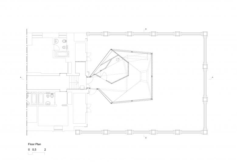
This new volume is seen as a “container”, a hermetic box. It is torn at certain points, creating a game of light and shadow which determines the interior path. The building’s programme only includes two compartments which support the activities on the rooftop. At the construction level, a wooden structure has its interior covered in gypsum board and slate, in fish scale format, in the outside.
The new building’s shape and its external coating derived from its surroundings, the turrets seen on the rooftops of the most representative and ancient buildings. It is a reinterpretation of the historic and architectural elements of the city, giving them a contemporary identity.
A “piazza” on the rooftop.
- Architects
- COR arquitectos
- Any
- 2010
- Estat del projecte
- Construït
- Client
- Sociedade Hoteleira Portugal
- Architects
- COR arquitectos Roberto Cremascoli Edison Okumura Marta Rodrigues
Projectes relacionats
Revista
-
-
Bâtiment de la semaine
The Three-Body Problem: Trapped in a Wave Sandwich
Eduard Kögel, Scenic Architecture Office | 13.04.2026 -






















