Sanierung Mehrfamilienhäuser Schützenstrasse 2-10 Dietikon
Dietikon, Switzerland
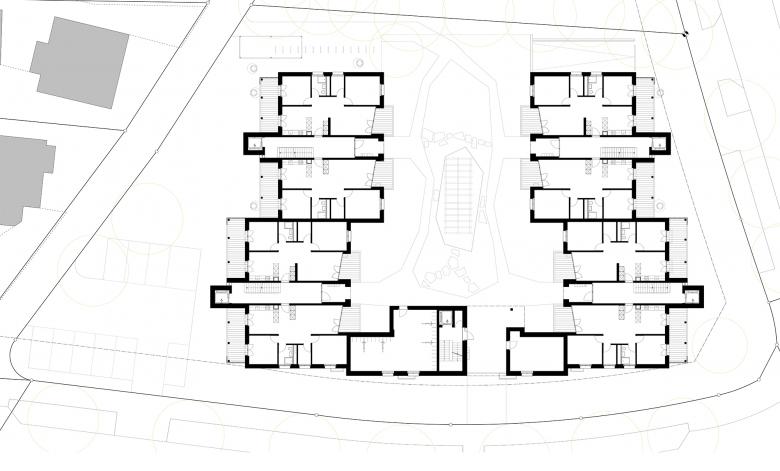
Die Bauherrschaft beabsichtigt mit einer Sanierung und Nachverdichtung die Liegenschaft energetisch, behindertengerecht sowie im Komfort zu verbessern. Die Satteldächer mit den darunterliegenden unattraktiven Dachwohnungen werden abgebrochen und durch ein Attikageschoss in Holzbauweise mit grosszügigen Dachterrassen ersetzt. Weiter werden die zweiläufigen Treppenhäuser durch eine einläufige Treppe ersetzt und mit einem Lift ergänzt. Die kleinen Balkone zum Innenhof bleiben bestehen. Die Aussenbereiche werden durch grosse, fassadenbildende Balkone auf der Gebäudeaussenseite erweitert. Die bestehende Aussendämmung wird durch einen neuen Fassadenaufbau mit einer hinterlüfteten Holzfassade energetisch verbessert und aufgewertet. Ein Zwischenbau mit vier neuen Kleinwohnungen ergänzt die Gesamtanlage und stellt den rollstuhlgängigen Zugang in die Tiefgarage sicher. Ein attraktiver Aufenthaltsbereich mit Pergola mit einer neuen Begrünung und Wegnetz werten den Innenhof auf. Die Individualbereiche im EG werden auf die Balkongrösse beschränkt, wodurch der Innenhof grosszügiger erscheint. Die Aussenbereiche erfahren eine naturnahe, mit ergänzenden Elementen für Insekten, vorgesehene Umgestaltung.
- Architects
- ERP Architekten AG_____ egli rohr partner
- Any
- 2023
- Estat del projecte
- En construcció
- Client
- Katholische Kirchgemeinde Dietikon
- Landschaftsarchitekt
- Planikum AG
- Visualisierungen
- Nightnurse Images AG











