Schul- und Weiterbildungszentrum Pädagogische Akademie Elisabethenstift
Pützerstraße 18, Darmstadt, Germany
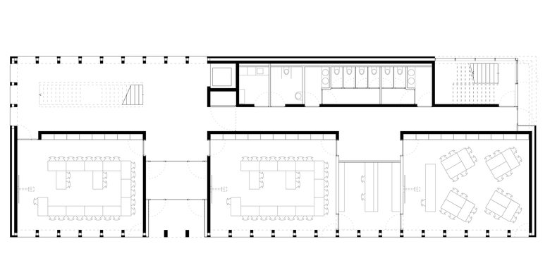
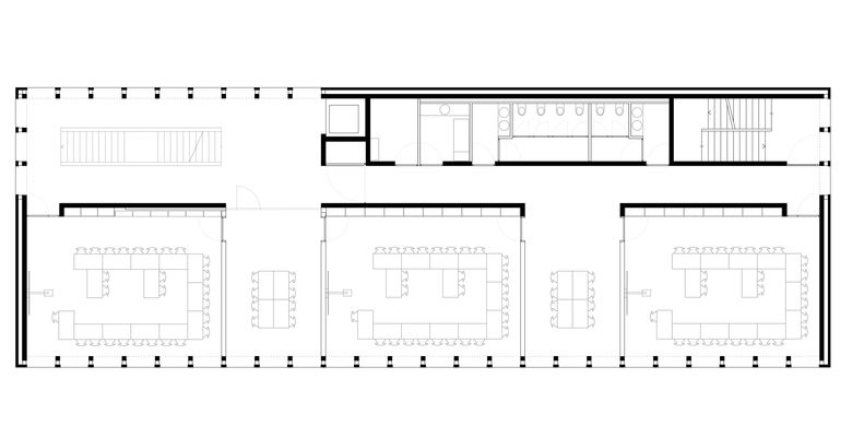
Der Neubau des dreigeschossigen Schul- und Weiterbildungsgebäudes nimmt als Riegel die nachbarlichen Baufluchten auf und schließt den Blockrand zur Pützerstraße. Durch die großzügige Geste einer mehrgeschossigen Glasfassade an der Südwestecke öffnet sich der Baukörper einladend zum Straßenraum. Mit seiner Ziegelfassade und den Fensterelementen in Holzbauweise erhält der Baukörper einen warmen und freundlichen Charakter und fügt sich so gut in das nachbarschaftliche Wohnumfeld ein.
- Architects
- Waechter + Waechter Architekten
- Any
- 2016
- Estat del projecte
- Construït
- Client
- Pädagogische Akademie Elisabethenstift
- Auszeichnung
- 2018, BDA Hessen, Joseph-Maria-Olbrich-Plakette
























