Schulanlage CU Uetikon
Uetikon, Switzerland
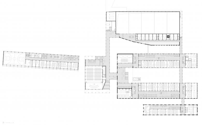
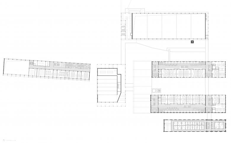
VPA gewinnt den Projektwettbewerb für die Schulanlage mit Kantons- und Berufsfachschule auf dem CU-Areal in Uetikon am See. Architektur und Generalplanung
Die Passarelle führt von der alten Landstrasse hinunter zum See
Fotografia © indievisual / VPA ARCHITEKTUR
Die Hallen im Kammerofengebäude bleiben erlebbar und werden als Lernlandschften genutzt
Fotografia © indievisual / VPA ARCHITEKTUR
Links am Bahndamm Sport- und Mintgebäude, rechts im Vordergrund Berufsfachschule
Fotografia © VPA ARCHITEKTUR
- Architects
- VPA ARCHITEKTUR
- Any
- 2022
- Estat del projecte
- Disseny
- Client
- Kanton Zürich
- Wettbewerb
- 1. Rang
- Generalplanungsteam
- VPA ARCHITEKTUR AG, Heinrich Landschaftsarchitektur GmbH, APT Ingenieure GmbH, GODE AG, Elektroplanung Hochstrasser Glaus + PC AG, HLK Ingenieure Bösch Sanitäringenieure AG , BAKUS Bauphysik und Akustik GmbH














