Schulanlage Neufeld Thun
Thun, Switzerland
Städtebauliches & architektonisches Konzept Projekt Incastro
Die denkmalgeschützte, bestehende Schulanlage Neufeld, welche ab 1956 in zwei Etappen erbaut wurde, wird durch zwei neue Gebäudekörper ergänzt.
Ausgehend von der Grundrisstypologie der Bestandesbauten erhält die Schulanlage mit einem gegenüber der Kreuzung zurückversetzen zweigeschossigen Volumen einen adäquaten Abschluss.
Durch den dezidierten Versatz zu den beiden in einander verschränkten Zeilen im Süden schafft die zeilenförmige Schulerweiterung städtebaulich eine einladende Geste.
Bewusst ordnet sich die Schulerweiterung volumetrisch den grossmassstäblichen Bauten beim Siegenthalergut und dem «Zentrum Oberland» unter und orientiert sich stattdessen am Bestand und dessen Massstäblichkeit.
Die Doppelsporthalle schafft als selbstbewusstes Gebäudevolumen den Abschluss nach Nordwesten. Sowohl von der Autobahn als auch von der Innenstadt her kommend erhält die Doppelsporthalle mit ihrer öffentlichen Nutzung (Allwetterplatz / Sportanlässe) die ihr gebührende stadträumliche Präsenz.
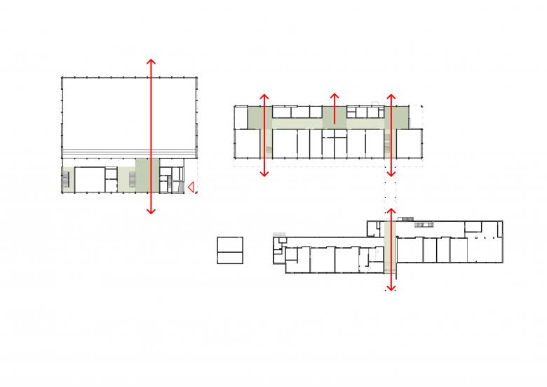
Das Thema der Durchlässigkeit ist nicht nur für das städtebauliche Konzept prägend – es wird in der Grundrissorganisation der Schulerweiterung ebenso konsequent aufgegriffen. Die nach Süden orientierten Treppenhäuser schaffen eine direkte Verbindung zum lärmgeschützten Aussenraum. Nach Norden öffnet sich der Korridor unter anderem im Bereich der Treppenhäuser zu dezidiert grosszügig konzipierten Multifunktionszonen (MFZ), welche von direktem Tageslicht profitieren. Dies schafft eine optische Verbindung zwischen den beiden Längsfassaden und lässt die Gebäudetiefe erlebbar werden.
Die Erschliessungszonen sind grosszügig gehalten und beherbergen die Garderoben der Basisklassen und der Tagesschule.
- Architects
- Hunkeler Architekten AG
- Any
- 2023
- Estat del projecte
- Disseny
- Equip
- Nicolas Hunkeler, Patrick Suhner
- Landschaftsarchitekten
- grünwerk1
- Bauingenieur
- WaltGalmarini AG
- Bauphysik
- Gartenmann Engineering AG
- Visualisierung
- indievisual AG Zürich
- Offener Wettbewerb
- 4. Rang















