Seminargebäude am 'Haus der Wannsee-Konferenz‘
Am Großen Wannsee 56-58, Berlin, Germany
Das Haus der Wannsee-Konferenz ist die im Ausland bekannteste Gedenkstätte zum Völkermord an den europäischen Juden. Ein ergänzendes Seminargebäude wurde notwendig, um der wachsenden Zahl an Besuchern gerecht zu werden und das Tagungsangebot erweitern zu können.
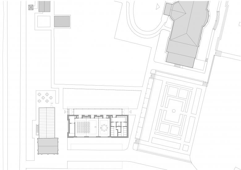
Das zwischen dem ehemaligen Gärtnerhaus und dem Rosengarten gelegene Gebäude begrenzt den Garten der Villa nach Süden. Der dreiseitig umschlossene Baukörper öffnet sich mit einem gläsernen Foyer zum Haupthaus und bindet mit einem ausschwingenden Vordach die an beiden Seiten ankommenden Gartenwege ein. Der Schwung des Daches vermittelt zwischen dem zur denkmalgeschützten Anlage hin zurückhaltenden Erscheinungsbild des Seminargebäudes und der erforderlichen Raumhöhe für die Konferenznutzung im Inneren. Gleichzeitig gibt die plastische Ausformulierung des Daches dem Bau ein unverwechselbares Gesicht.
Das raumhoch verglaste Foyer dient als Treffpunkt und Aufenthaltsbereich, der von der Sichtbeziehung zum Originalschauplatz lebt. Im Kontrast dazu wird der dahinter liegende Konferenzbereich von einer konzentrierten Atmosphäre bestimmt. Der zweifach teilbare Raum erhielt eine hölzerne Raumschale, in die Raumteiler, Einbaumöbel, Sonnenschutz, Licht- und Medientechnik integriert sind. Nebenraumzonen fassen den Konferenzbereich an den Seiten. Sie sind wie die Rückfassade in Sichtbeton ausgebildet und geben dem Gebäude einen festen Rahmen, aus dem sich das markante Vordach in Richtung Garten schwingt.
- Architects
- Staab Architekten
- Any
- 2024
- Estat del projecte
- Construït











