Seniorenzentrum Wier
Ebnat-Kappel, Switzerland
Seniorenzentrum Wier in Ebnat-Kappel
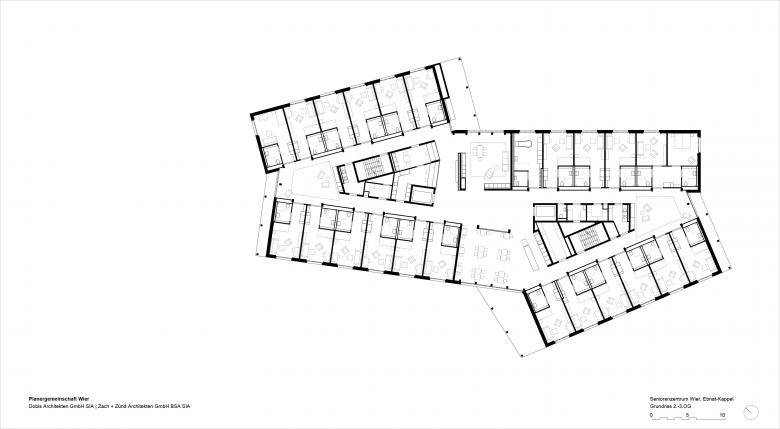
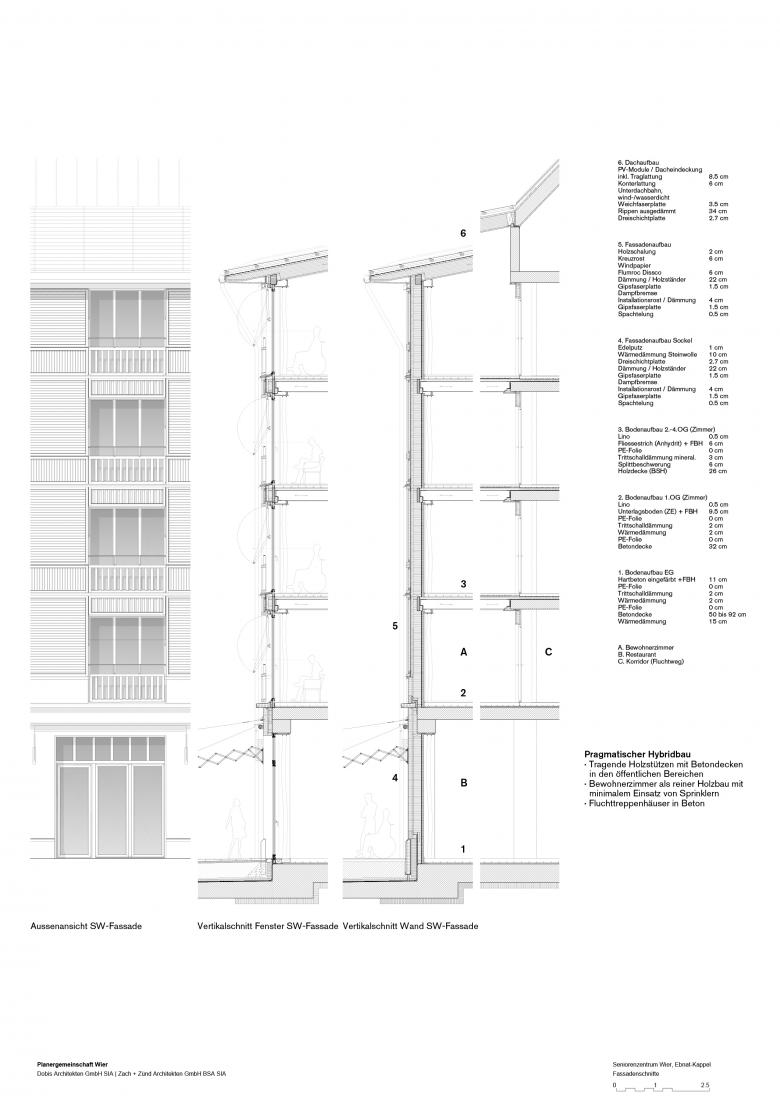
Leicht erhöht über Ebnat-Kappel und dem Tal knüpft das Pflegeheim Wier in seiner Volumetrie, seiner Gestaltung und Materialität an traditionelle Hotelbauten in den Alpen an. Vier zueinander verschobene Zimmertrakte bilden den Baukörper und formulieren im Inneren attraktive, sich öffnende und schliessende Gemeinschafts- und Erschliessungsräume. Die beiden Erschliessungskerne sind in Beton ausgeführt, während die Zimmertrakte und die Tragstruktur aus lokalem Holz erstellt wurden. Die Holzfassade steht auf einem massiven, leicht überhöhten Sockel und wird mit einem markanten Dachvorsprung nach oben gefasst. Grosse Loggien und eine dem Speisesaal vorgelagerte Sonnenterrasse lassen an das luxuriöse Leben in Sanatorien anfangs des letzten Jahrhunderts erinnern.
Das Pflegeheim als Kurhaus
Als erste Etappe des Ensembles «Seniorenzentrum Wier» bietet das Pflegeheim Heimat für 94 pflegebedürftige Bewohnerinnen und Bewohner am Hang über dem Dorfzentrum. In der Tradition der Kurhäuser, nicht als Spital, zeigt sich das Pflegeheim als öffentliches, stolzes Gebäude. Regionale Elemente wie die dunkle Holzfassade, der verputzte Sockel, das auskragende Schrägdach werden aufgenommen und für die grossmassstäbliche Nutzung «Pflegeheim» weiterentwickelt.
Ein Pflegeheim in tragendem Holz
Ein intelligentes Brandschutzkonzept ermöglicht einen Beherbergungsbetrieb mit tragenden Holzstützen und sichtbaren Holzdecken. Die vier identischen orthogonalen Zimmereinheiten wurden als wirtschaftlicher Holzelementbau mit hoher Vorfertigung geplant. Massive Holzstützen tragen die Betondecken der dazwischen gespannten «fliessenden» Gemeinschafts- und Erschliessungsräume und die des öffentlichen Erdgeschosses.
Die Tragstruktur aus Holz prägt die Innenräume gestalterisch und atmosphärisch:
In den gemeinschaftlichen Bereichen wirken die freistehenden Holzstützen als raumbildende Elemente.
Die Fenster und die Steigschächte entlang der Korridore der Wohngruppen werden durch die sichtbaren Holzstützen gefasst und die Decken der Bewohnerzimmer unterstützen die Wohnlichkeit der Zimmer.
Der konstruktive Holzbau wird durch gestalterische Ausbauelemente in Holz zur Einheit ergänzt und durch präzisen Farbeinsatz kontrastiert und bewusst in Szene gesetzt.
Aus den Fenstern sieht man den Wald, aus dem das Holz kommt
Von der Tragstruktur bis zum Vorhangbrett kam einheimisches Holz zum Einsatz. Der Holzschlag im gemeindeeigenem Wald wurde vorab schon im Vorprojekt ausgeschrieben. Die Holzlieferung bildete die Bedingung für die öffentliche Submission Holzbau.
Die Wertschöpfung bleibt in der Region.
Die Identifikation mit dem Gebäude wird sichtbar, greifbar.
Ein Holzbau mit geringem Budget
Der äusserst pragmatische und kostenbewusste Umgang mit der Kombination «Massivbau – Holzbau» in Bezug auf Brandschutz, Kosten, Termine ermöglichte die Realisierung des Pflegeheims mit im Verhältnis günstigen Gesamtkosten. Durch den Einsatz der Holzbauweise konnte in den komplizierten Baugrundverhältnissen u.a. die Fundierung und der Massivbau optimiert werden.
Das Gebäude verspricht langfristige Flexibilität, da in der Ebene der vertikalen Tragstruktur keine tragen-den Zimmerwände und Steigzonen der Bewohnerzimmer angeordnet sind.
1.Preis Wettbewerb 2016 mit Lenka Gmucova,
siehe auch "Projekt Neubau Pflegeheim Wier und Alteswohnungen"
- Architects
- Zach + Zünd
- Any
- 2023
- Estat del projecte
- Construït
- Client
- Gemeinde Ebnat-Kappel
- Planergemeinschaft Wier
- Zach + Zünd und Dobis Architekten
- Landschaftsarchitektur
- Lorenz Eugster Landschaftsarchitektur und Städtebau GmbH











































