Центральные кварталы

Visualització © Архитектурное бюро «ОСА»

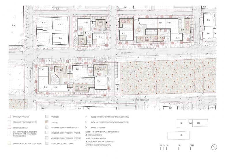
Кварталы в тихом центре большого города. Продолжают историческую для него тему квартальности, используя все ее положительные характеристики. При этом, формообразование, стиль фасадов, эстетика общественных пространств учитывают современные тренды в этой области недвижимости.

Параметры
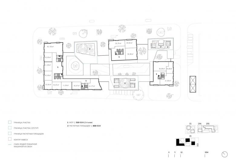
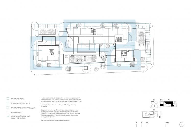
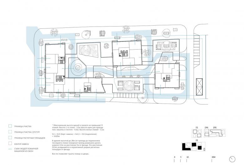
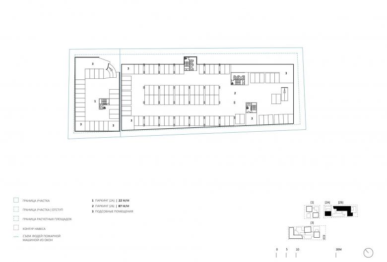
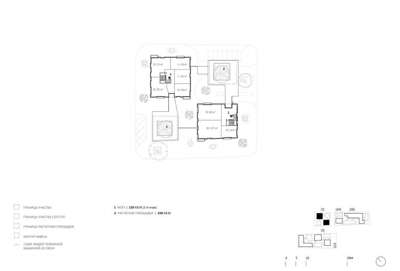
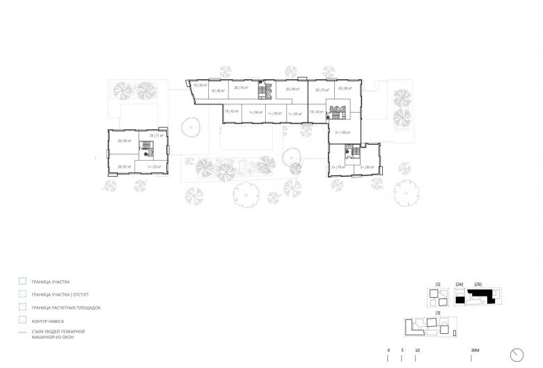
Площадь участка – 1,69 га
Количество надземных этажей – 7, 8
Количество подземных этажей – 1
Полезная площадь – 22 420 м²
в том числе:
Площадь квартир – 20 835 м²
Коммерческие помещения – 1 585 м²
Плотность жилого фонда – 12 328 м²/га
Количество машиномест – 345
в том числе:
Под двором – 100 %

Visualització © Архитектурное бюро «ОСА»
Visualització © Архитектурное бюро «ОСА»
Visualització © Архитектурное бюро «ОСА»
Visualització © Архитектурное бюро «ОСА»
Visualització © Архитектурное бюро «ОСА»
Visualització © Архитектурное бюро «ОСА»
Visualització © Архитектурное бюро «ОСА»
Visualització © Архитектурное бюро «ОСА»
Dibuix © Архитектурное бюро «ОСА»
Fotografia © Архитектурное бюро «ОСА»
© Архитектурное бюро «ОСА»
© Архитектурное бюро «ОСА»
© Архитектурное бюро «ОСА»
© Архитектурное бюро «ОСА»
© Архитектурное бюро «ОСА»
© Архитектурное бюро «ОСА»
Fotografia © Архитектурное бюро «ОСА»
© Архитектурное бюро «ОСА»
© Архитектурное бюро «ОСА»
© Архитектурное бюро «ОСА»
© Архитектурное бюро «ОСА»
Fotografia © Архитектурное бюро «ОСА»
© Архитектурное бюро «ОСА»
© Архитектурное бюро «ОСА»
© Архитектурное бюро «ОСА»
© Архитектурное бюро «ОСА»
© Архитектурное бюро «ОСА»
© Архитектурное бюро «ОСА»
Architects
ОСА
Estat del projecte
Disseny
Equip
Vasiliy Krapivin, Xenia Prince, Olga Mikhailenko

Projectes relacionats 

  • Moos
    playze
  • Reiters Reserve Premium Suiten
    BEHF Architects
  • Erweiterung und Instandsetzung Hallenbad Altstetten
    MIYO Visualisierung
  • Neubau von fünf Einfamilienhäusern
    Bäumlin+John AG
  • The Forge in der 105 Sumner Street in London
    Kiefer Klimatechnik GmbH

Revista 

Altres projectes per ОСА 

Эрвье 24
Тюмень, Russia
Микрорайон «Европейский»
Тюмень, Russia
Каменный ручей
Екатеринбург, Russia
Новый центр Калининграда
Солнечный 2.1
Екатеринбург, Russia