Siedlung Rehgüetli
Friedbergstrasse, Schaffhausen, Switzerland
Städtebau
Die Überbauung ist in den steilen Hang eingebettet und folgt dem natürlichen Geländeprofil. In der Verlängerung der Friedbergstrasse entstand eine autofreie Spielstrasse. Die präzise Setzung und abgewinkelten Grundflächen der Häuser schaffen grosszügige gemeinsame Freiräume und private Rückzugsorte.
Typologie
Die neun Häuser greifen die Proportionen und Materialisierung der historischen Villenbauten des Quartiers auf und übersetzen sie in eine zeitgemässe, skulpturale Formensprache. Eingezogene Hauseingänge und Loggien bieten ein hohes Mass an Privatsphäre, die grossen Fensteröffnungen eröffnen gezielte Ausblicke in die Landschaft.
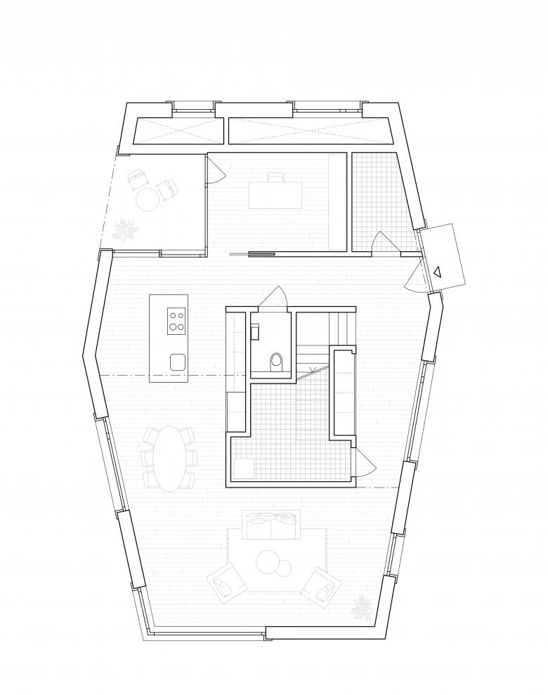
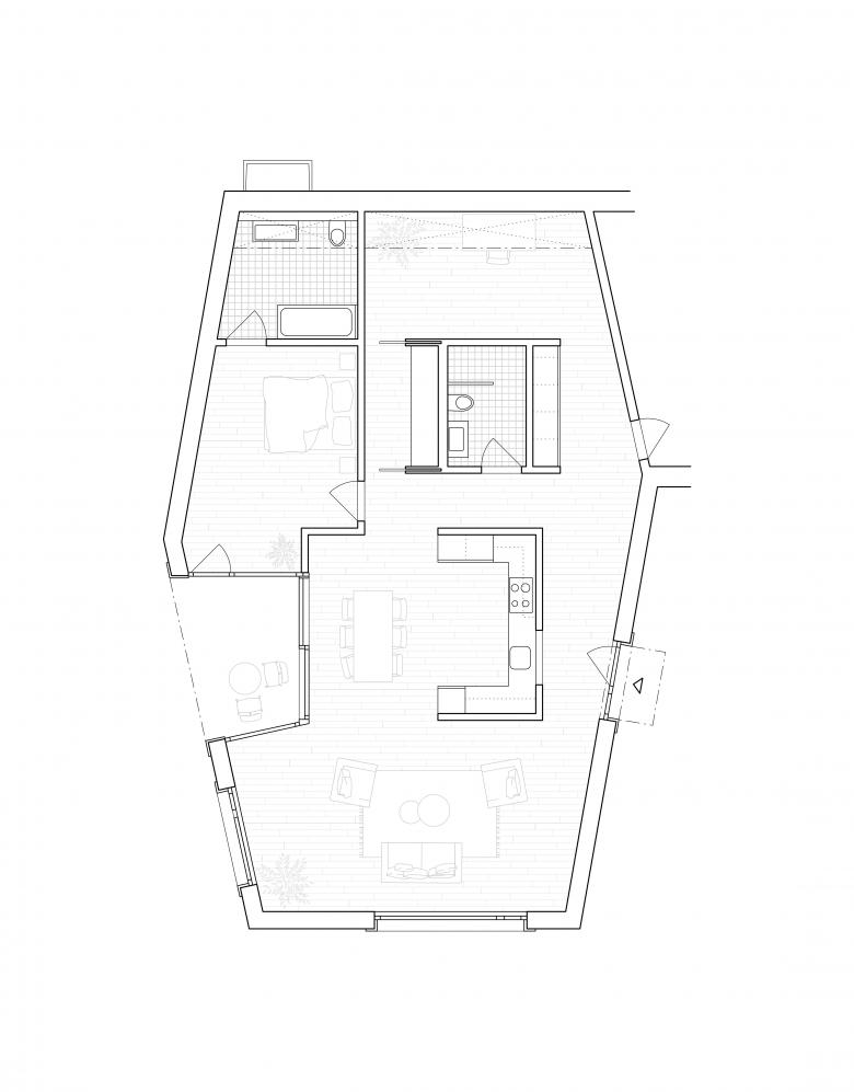
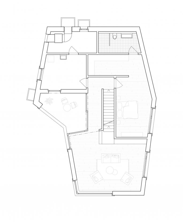
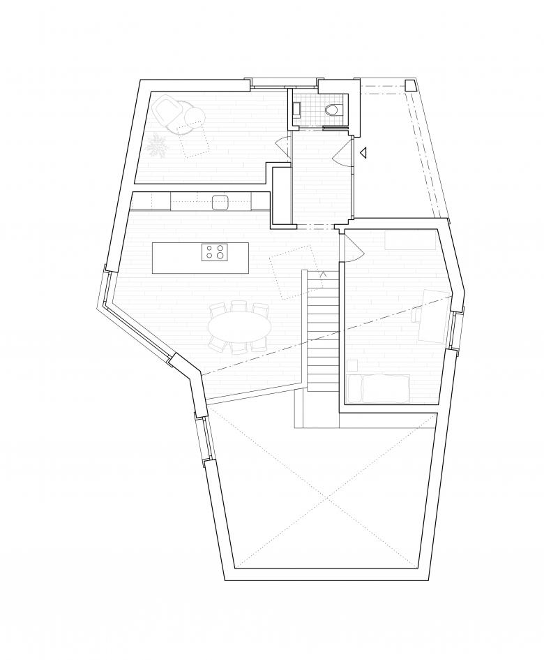
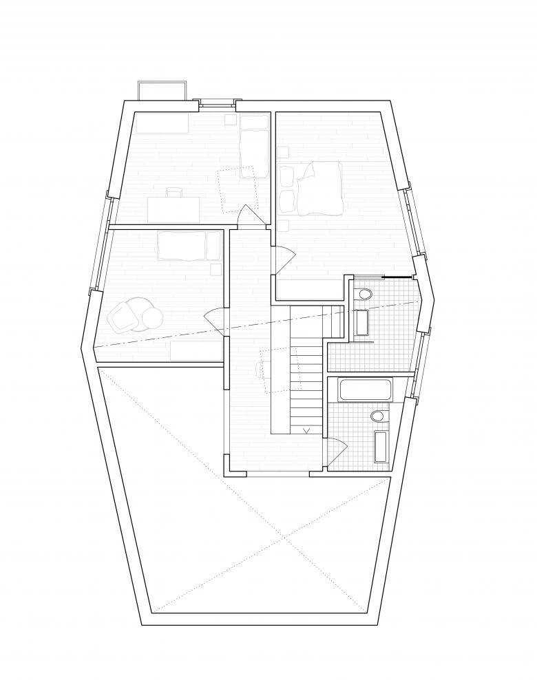
Innenraum
Während die untere Hausreihe reine 5.5-Zimmer Einfamilienhäuser sind, beherbergt die obere Reihe jeweils eine zusätzliche Wohnung, die über einen Aufzug aus der Einstellhalle hindernisfrei zugänglich ist. Im Innern zeichnen sich die Häuser durch offene Wohnküchen, überraschende Raumhöhen und fliessende Übergänge aus.
Energie
Alle Gebäude werden mit Luft-Wasser-Wärmepumpen geheizt. Das Haustechnikkonzept orientiert sich am MINERGIE-Standard.
Umgebung
Die Spielstrasse ist als offene, gemeinschaftlich genutzte Fläche mit überdachten Velounterständen gestaltet. Sitzplätze und private Gärten fügen sich ohne Zäune in die Blumenwiese ein.
- Architects
- Neustadt Architekten GmbH
- Any
- 2018
- Estat del projecte
- Construït
- Bauleitung (Rohbau)
- Burr Bauleitung
- Bauingenieur (Hochbau)
- Werner Locher
- Bauingenieur (Tiefbau)
- SV Easy Plan GmbH
- Bauphysik
- Mäder Bauphysik GmbH
- Heizungsplanung
- Schmid Hutter AG
- Sanitärplanung
- Bollinger GmbH
- Elektroplanung
- Weber Breitenstein AG
- Landschaftsarchitektur
- Bösch Landschaftsarchitektur
- Lichtplanung
- Atelier Dreher
- Fotografie
- Module Plus















