Spinnereigebäude Manegg
Spinnereiplatz 1, Zürich, Switzerland
In ihrer Blütezeit bildete die Spinnerei Manegg in ihrer Dimension mit den umfangreichen Wasserbauten und dem Fabrikhof eines der hervorragenden Industrieensembles des Kantons Zürich. Das 1863 als sechsschiffiger Massivbau erstellte Fabrikhauptgebäude wurde 1884 um drei Achsen vergrössert und 1906 zu einer Papierfabrik umgebaut.
Heute ist das mächtige denkmalgeschützte Spinnereigebäude nur noch ein Torso. Einzig die Umfassungswände ohne Dach und Fragmente der unteren Geschosse sind noch materiell vorhanden: das Kraftwerk auf der Ostseite sowie Unter- und Erdgeschoss des Anbaus auf der Westseite. Das Konzept baut auf dem Erhalt dieser zwei atmosphärisch starken Raumeinheiten und deren präzisen Ergänzung auf – in der Tradition der Wertschätzung von Vorgefundenem verbunden mit aktivem Weiterbauen.
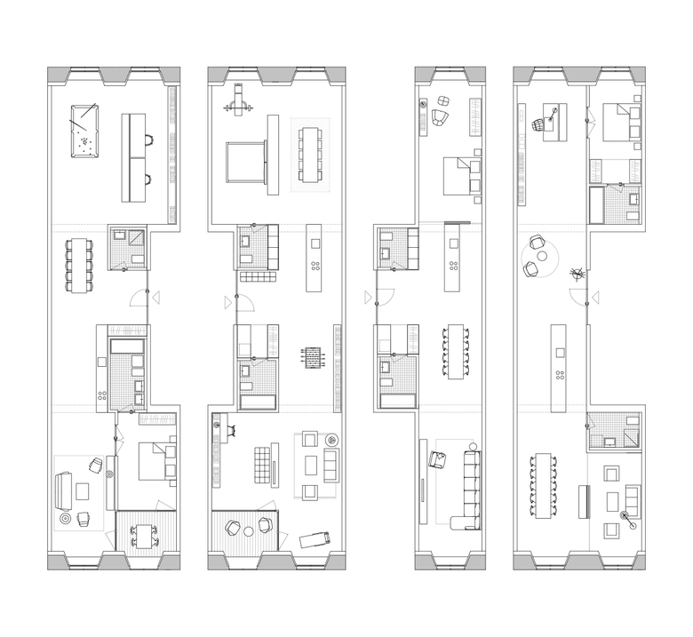
Die Zielsetzung des Umbaus ist die Planung hochflexibler Grundrisse, die sowohl die Realisierung von Loftwohnungen, als auch von Büroflächen ermöglichen. Im Erdgeschossbereich wird ein Restaurant / Café den Spinnereiplatz beleben; die Räume auf der Westseite sind mit ihren gusseisernen Säulen und der schönen Raumproportion prädestiniert für die Gastronomienutzung.
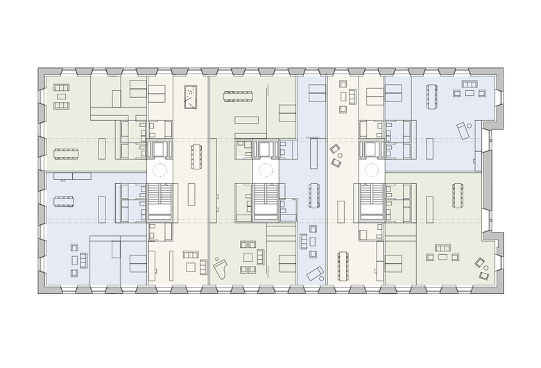
Eine effiziente neue Trag- und Erschliessungstruktur verbindet sich optimal mit dem Bestand und sichert den geforderten Erhalt der denkmalgeschützten Gebäudehülle und eine langfristig flexible Nutzung. Die neue Struktur in Verbindung mit dem Bestand transformiert das historische Bauwerk zu einem neuen kraftvollen Ganzen.
Das Konzept der drei Erschliessungskerne ermöglicht grosse Varianz der Wohnungsgrössen, Flächeneffizienz der Erschliessung, einen stützenfreien Grundriss durch Optimierung der Spannweiten und erzeugt einen seriellen Ausdruck mit „industriellem Charakter“, als Zeichen der „neuen“ Gewerbehalle.
Die Fassadengestaltung des bestehenden Spinnereigebäudes ist klassizistisch funktional. Die auffallendste Charakteristik ist die beeindruckende Addition gleichartiger, grosser Fenster. Diese werden als Doppelfenster ausgebildet: Zwischen den Vorfenstern mit der historischen Fensterteilung und den isolierten Innenfenstern kann diskret der Sonnenschutz integriert werden. Im Bereich der neuen öffentlichen Nutzungen im Erdgeschoss werden die vorhandenen Öffnungen bei gleichbleibender Breite nach unten verlängert und verstärken den Bezug zum Aussenraum.
Das additive der Fassadengestaltung wird durch die durchlaufenden Fensterbänder im flach geneigten Satteldach unterstrichen. Der grosszügige Dachstuhl wird zusätzlich durch regelmässig gesetzte Dachfenster belichtet.
Rohe Betonkerne, Unterzüge mit Betonrippendecken, der Dachstuhl, Hartbetonböden und ungestrichener Kalkzementputz prägen in ihrer Materialität die grosszügigen Innenräume – „Wohnen in der Fabrik“.
Wettbewerb
2013, 1. Preis
2018, Bezug
Tragwerk
Conzett, Bronzini, Gartmann AG
Bauherr
Losinger Marazzi AG
Stand
Bauprojekt
- Architects
- Zach + Zünd
- Any
- 2018
- Estat del projecte
- Construït
- Client
- Losinger Marazzi AG













































