Sporthalle Affing-Bergen
Augsburger Straße 4, Affing-Bergen
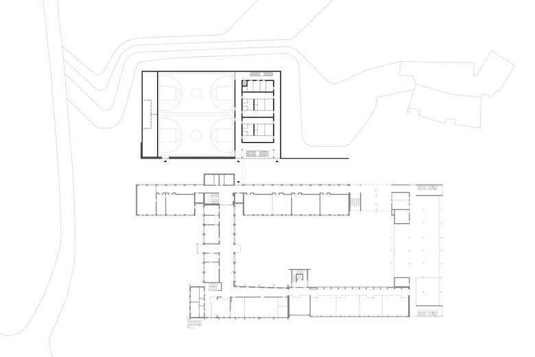
Im Rahmen der Erweiterung der Staatlichen Realschule Affing-Bergen entstand der Bedarf einer Doppelsporthalle inkl. Flächen für den Ganztagesbereich.
Das Grundstück nord-westlich der Bestandsschule ist hangseitig erschlossen und der Neubau situiert sich an der südlichen Baugrenze ohne die notwendige natürliche Belichtung und Belüftung der Schule zu beeinträchtigen.
Die plastische Erscheinung des Baukörpers wird durch das unterschiedlich geneigte Satteldach und die einheitliche Ausbildung der Fassaden unterstützt.
Eine Sichtbetonwand im Erdgeschoss markiert den Eingangsbereich mit Foyer und vertikaler Erschließung. Ein Steg mit direkter Anbindung an die Ringerschließung der Realschule ermöglicht den Ganztagesschülern einen trockenen Übergang zum Speisesaal.
Zur Gewährleistung der Barrierefreiheit liegt das Erdgeschoss-Niveau auf Höhe des Bestandes und wird in die Bestandstopografie integriert. Die natürliche Belichtung und Belüftung der Sporthalle erfolgt über 2 Lichtbänder mit integriertem Blendschutz aus Kapillargewebe im Scheibenzwischenraum. Im Bereich der Umkleiden ist das Gebäude zweigeschossig. Die bronzefarbene Hülle beinhaltet den Luftraum der Sporthalle und die Räume des Ganztagesbereiches inkl. Küche.
Das Erdgeschoss wird klar strukturiert durch Stiefelgang und Turnschuhgang, die sich zwischen der Eingangshalle mit Haupttreppe und der Nebentreppe aufspannen.
Über die Eingangshalle gelangt man in den Stiefelgang und erschließt von hier die vier Umkleidebereiche der Schüler mit Waschräumen und Toiletten, zwei Lehrerumkleiden und eine Behindertenumkleide. Die Halle selbst wird über die Eingangshalle und den Turnschuhgang erschlossen. Westlich der Halle werden die Geräteräume und die Lüftung für die Halle angeordnet. Die Halle ist mittels eines Trennvorhangs in zwei Bereiche abtrennbar.
Im 1.Obergeschoss werden der Ganztagesbereich mit Küche und Speisesaal, ein Konditionsraum, sowie eine Galerie zur Halle angeordnet. Die Erschließung erfolgt von Seiten des Bestands über einen Steg, sowie über die Haupttreppe in der Eingangshalle in diese Galerie, die das Thema Sport im Schulalltag verankert.
Aufgabe
Neubau einer Zweifachsporthalle mit Ganztagesbereich
Bauherr
Landkreis Aichach-Friedberg
Leistungsumfang
LPH 2-8 HOAI
Kenndaten
NF 1.450 m²
Ausführungszeit
VOF Zuschlag 04l2014
Planungsbeginn 07l2014
Fertigstellung 09I2017
- Architects
- Schwinde Architekten
- Any
- 2017
- Estat del projecte
- Construït
Projectes relacionats
Revista
-
Bâtiment de la semaine
The Three-Body Problem: Trapped in a Wave Sandwich
Eduard Kögel, Scenic Architecture Office | 13.04.2026 -
-



















