Stadtquartier Gehrenseestrasse Berlin
städtebauliches Konzept / Nutzungskonzept
Grundbaustein des Quartiers sind 8 –geschossige Wohnhöfe, die entlang der Wollenberger Strasse positioniert werden.
Werden 2 von ihnen gegenübergestellt, entstehen wiederum Wohnblöcke, 3 dieser Wohnblöcke mit jeweils ca. 40.000 m2 BGF bilden die Grundstruktur des Quartiers.
An exponierten Positionen werden, wiederum aus Modifikationen des Grundmoduls, 16 – geschossige Turmbauten errichtet, die das Quartier in seinem grossmasstäblichen Kontext verorten.
Übergeordnete Wege bzw. Grünflächen werden in das städtebauliche Konzept integriert, als Teil des Gesamtensembles erhöhen sie die Qualität der Lage.
Platz:
Neben Einzlhandel, Dienstleistungen und Gastronomie ist eine Integration inklusiver Konzepte vorgesehen, nebst verschiedenen Funktionen wie Sozial - / Pflegeeinrichtungen und Schule sind weitere Angebote geplant, die der Daseinsvorsorge der Bewohner dienen.
Übergeordnete Netzwerke:
Generell wird von der Integration des Quartiers in den Kontext erwartet, dass der weitere Raum des Stadtteilzentrums Alt Hohenschöhausen aktiviert wird. Durch die attraktiven Räume des neuen Quartiers und neu geschaffene Wegeverbindungen ist eine nachhaltig positive Entwicklung des Umfeldes zu erwarten.
Architektur
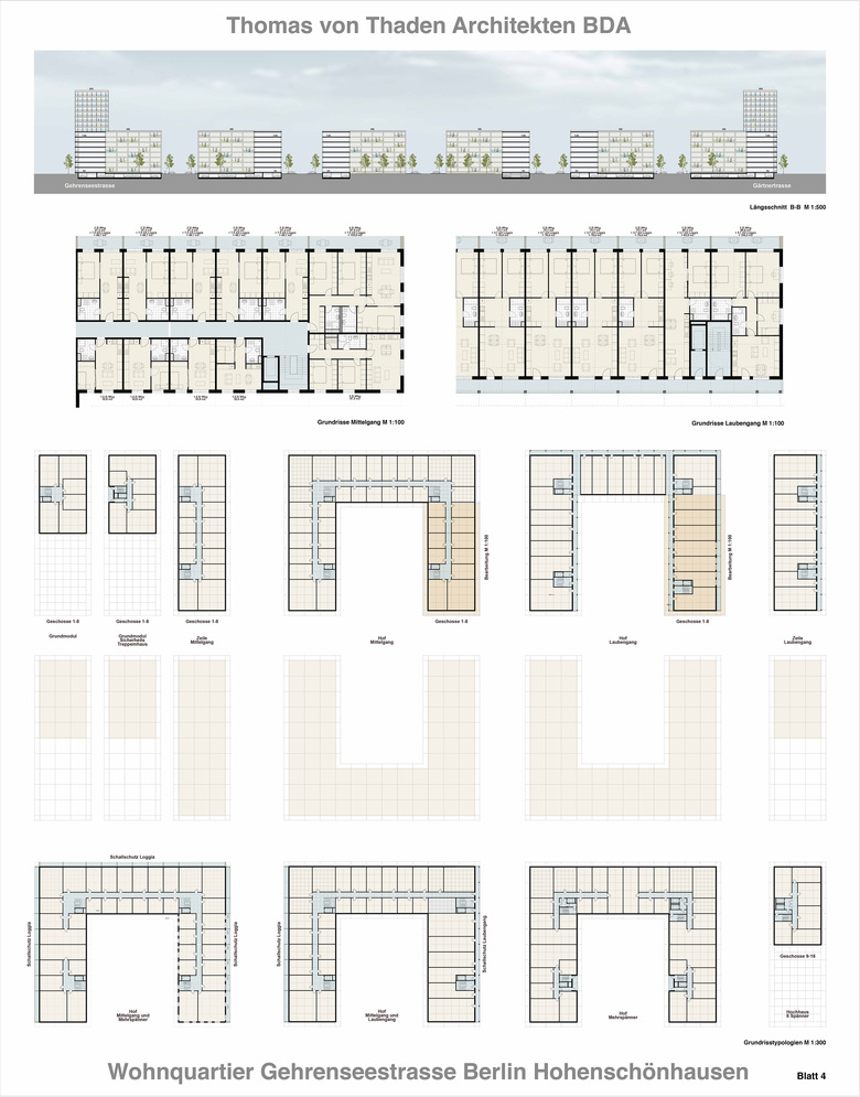
Modulare Hauseinheiten bilden innerhalb eines Systems hoher Flexibilität den Grundbaustein für das Quartier.
Auf Grundlage eines Rasters von 5,50 m und dem Grundmodul eines Haustypus von 16,50 / 18,00 m m x 27,50 m werden die verschiedensten Erschliessungstypologien entwickelt.
Allen Typen ist gemeinsam, dass sie einen integrierten 2. Rettungsweg haben, entweder durch Sicherheitstreppenhäuser light oder 2 miteinander verbundene Treppenhäuser:
Grundmodul / 6 - Spänner / 8 Geschosse, Grundmodul / 6 – 8 Spänner / 8 Geschosse / Sicherheitstreppenhaus, Zeile / Mittelgang / 2 Treppenhäuser, Block / Mittelgang / 4 Treppenhäuser, Block / 4 Mehrspänner / Sicherheitstreppenhäuser, Modul Hochhaus / 6 – 8 Spänner Sicherheitstreppenhaus, etc.
Freiflächen
Durch die Ausformung einer differenzierten Freiraumstruktur, mit Plätzen, Promenade, Grünräumen und Innenhöfen wird eine attraktive / vielfältige Naherholungs¬nutzung ermöglicht.
Die eher privaten grünen Wohnhöfe erlauben einen direkten Kontakt der Hausgemeinschaft zu den gemeinsame Grünflächen. Vielfältige Aktivitäten wie Spielen oder Urban Gardening sind vorstelllbar, oder aber die entspannte Kommunikation im Hausgarten.
Der Platz mit seinen Angeboten an Dienstleistungen und Einzelhandel dient dem gesamten Quartier, aber auch seinem Umfeld.
Durch ihn wird ein direkter funktionaler und räumlicher Bezug zum Stadtteilzentrum Alt Hohenschönhausen hergestellt, was zu einer gegenseitigen Förderung der Aktivitäten beitragt.
- Architects
- Thomas von Thaden Architekten GmbH
- Estat del projecte
- Disseny
- Client
- Belle Epoque Gesellschaft für behutsame Stadterneuerung mbH, HOWOGE Wohnungsbaugesellschaft mbH
- TOPOS Stadtplanung Landschaftsplanung Stadtforschung
- Dipl. arch. Stephan Buddatsch BDLA SRL
Projectes relacionats
Revista
-
-
Bâtiment de la semaine
The Three-Body Problem: Trapped in a Wave Sandwich
Eduard Kögel, Scenic Architecture Office | 13.04.2026 -







