Studentenwohnhaus Sudermanplatz
Sudermanplatz, Köln, Germany
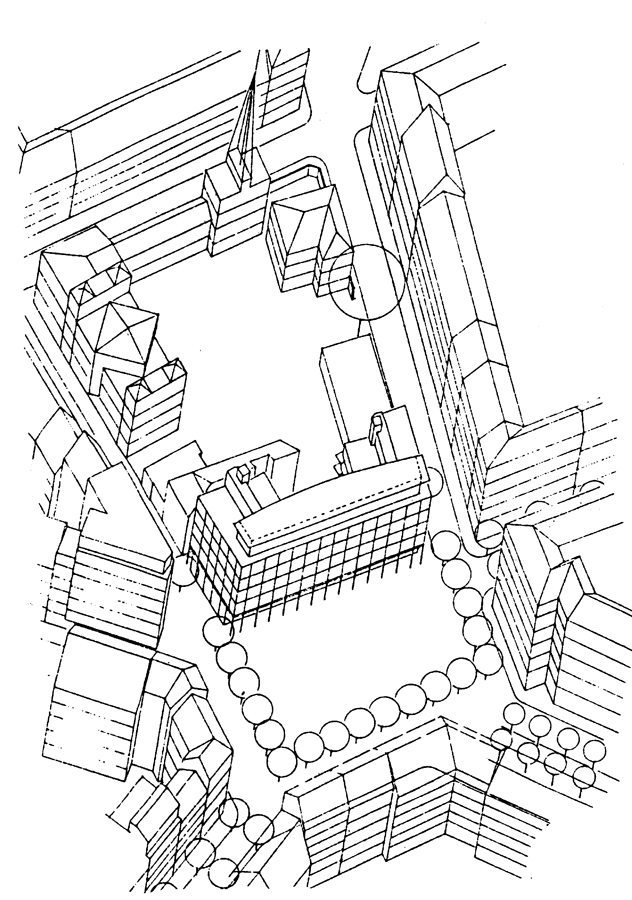
Der Sudermanplatz ist einer der typischen Sternplätze der Kölner Neustadt und einer der letzten großen innerstädtischen Plätze der Stübbenschen Neustadt, der nach der Kriegszerstörung als "Provisorium" liegengeblieben ist. Das Studentenwohnheim schließt diese Lücke und macht über eine Integration der Kompaktstation der GEW den Weg für eine großzügige Neugestaltung dieses wichtigen Platzes frei. Das Bauvorhaben mußte in dem sehr engen Kostenrahmen des sozialen Wohnungsbaus realisiert werden.
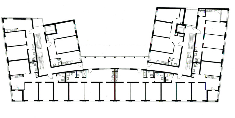
Über die Funktion als Sonnenschutz hinaus geben die Schiebeläden den Bewohnern die Möglichkeit sich in der reizvollen aber auch exponierten Lage eines innenstädtischen Marktplatzes abschirmen zu können, ohne den Kontakt zur Außenwelt völlig zu verlieren.
- Architects
- Schaller Architekten Stadtplaner BDA
- Any
- 1998
- Estat del projecte
- Construït













