Stutenseebad
Erich-Kästner-Straße 4, Stutensee, Germany
Neubau eines Hallenbades unter dem Blickwinkel der Nachhaltigkeit.
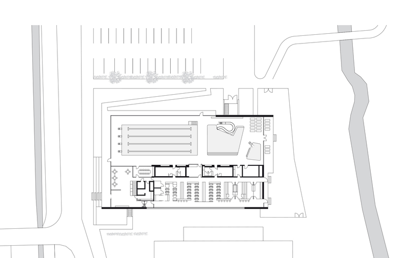
Im Vordergrund der Planung für das neue Schwimmbad stand, ein gestalterisch überzeugendes und qualitativ hochwertiges Gebäude mit langer Lebensdauer zu errichten. Deshalb wurde der Neubau unter Anwendung der Nachhaltigkeitskriterien im staatlich geförderten kommunalen Hochbau entwickelt (Förderprogramm NBBW). Der kompakte Baukörper mutet von außen schlicht an, im Innenraum herrscht eine leuchtend helle Atmosphäre, die mit maximaler Aufenthaltsqualität überzeugt. Architektonisch gliedert sich das Stutensee-Bad in zwei Raumvolumen, die sich sichtbar von außen abzeichnen. Die geräumige Badehalle umfasst ein Schwimmerbecken, ein Lehrschwimmbecken mit Rutschbahn sowie einen Kleinkindbereich mit insgesamt 368 m² Wasserfläche. Der nach Süden angrenzende Eingangs- und Umkleidebereich mit Dusch- und Nebenräumen setzt sich durch eine reduzierte Raumhöhe von der Badehalle ab. Dabei greifen die zwei Baukörper in Form und Materialität ineinander und verzahnen sich von außen durch ein umlaufendes Band der Stahlblechfassade.
Die klare Grundriss-Organisation von Badehalle und Umkleidebereich ermöglichte eine kompakte und ökonomische Bauweise mit einem günstigen A/V-Verhältnis. So lassen sich nicht nur die Baukosten, sondern auch die Kosten im Betrieb reduzieren. Keller- und Erdgeschoss sind in Stahlbeton ausgeführt, die Tragstruktur für die weit gespannte Badehalle und den Umkleidebereich wurde in Holzbauweise errichtet. Auch die abgehängten, akustisch wirksamen Lamellen-Decken und Wandverkleidungen sind in Holz ausgeführt. Aufgrund seiner positiven Eigenschaften und seiner natürlichen Anmutung eignet sich das Material besonders gut, um Räumen mit schallharten Flächen wie Badehallen Atmosphäre zu verleihen und die Raumakustik zu optimieren. Darüber hinaus sorgte der hohe Vorfertigungsgrad der Holzelemente für eine wirtschaftliche Bauweise und kürzere Bauzeiten.
- Architects
- 4a Architekten
- Any
- 2018
- Estat del projecte
- Construït
- Client
- Stadt Stutensee
- Equip
- Markus Christ, Simone Mann, Sivia Nanz, Anke Pfudel-Tillmanns (Projektleitung), Philipp Schmid (Bauleitung), Kateryna Shelegon















